Verkocht

Cape Kennedy 41

3402 DD, Ijsselstein

Vierkante meter icoon

88 m2

4 Kamers

€ 475.000,- k.k.

Kan ik dit huis betalen?

Over deze woning

Comfortabel en zorgeloos wonen met prachtig uitzicht


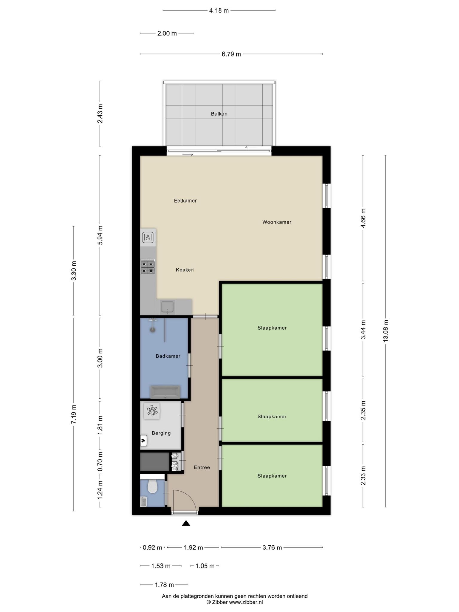
Dit ruime 4-kamerappartement (ca. 88 m²) is gelegen op de 5e verdieping van het moderne appartementencomplex “Uptown” (bouwjaar 2016). De woning is van alle gemakken voorzien en beschikt over drie slaapkamers, een royale woonkamer, een open keuken, een moderne badkamer, een apart toilet en een zonnig balkon. In de ondergelegen parkeergarage heeft u een eigen parkeerplaats en een ruime privéberging.

Het gebouw is modern, uitstekend geïsoleerd en voorzien van zonnepanelen voor de algemene ruimtes. Dankzij de actieve en betrokken Vereniging van Eigenaren zijn de algemene ruimtes altijd goed verzorgd.


Indeling:

Begane grond

Het appart

...

Ons team staat voor je klaar

Huis verkopen in IJsselstein met Rob
Neem contact met ons op
030 688 3480
info@aarendonk.nl
Gratis advies
Persoonlijke aanpak
Uitgebreide bezichtigingen
Contact opnemen

Heb ik zon in mijn tuin?


De ligging van je tuin is niet gespecificeerd. Echter, ongeacht de ligging, kan elke tuin worden omgetoverd tot een prachtige buitenruimte. Met de juiste planning en design kan je een tuin creëren die bij je levensstijl past en die je kunt genieten in elk seizoen. Of je nu houdt van tuinieren, buiten eten, of gewoon ontspannen in de open lucht, je tuin kan de perfecte plek zijn voor al deze activiteiten en nog veel meer.

Algemene informatie

Aangeboden sinds:
maanden te koop
Aanvaarding:
In overleg
Soort bouw:
Bestaande bouw
Bouwjaar:
2016

Grootte en oppervlakte

Gebruiksoppervlakten wonen:
88 m2
Overige inpandige ruimte:
Toilet, gang, hal, stookruimte, berging, balkon, wasruimte
Externe bergruimte:
17 m2
Inhoud:
290 m3

Kamers en indeling

Aantal woonlagen:
1
Aantal kamers:
4
Aantal slaapkamers:
3
Aantal badkamers:
1

Buitenruimte

Soort dak:
Plat dak
Soort buitenruimte:
Parkeerkelder
Schuur/Berging soort:
Inpandig

Garage en parkeren

Garage isolatie:
Parkeerkelder

Garage Voorzieningen

Parkeergelegenheid

Openbaar parkeren, op afgesloten terrein

Tuin

Geen tuin

Ligging

In woonwijk, vrij uitzicht

Voorzieningen

Mechanische ventilatie, tv kabel, lift, natuurlijke ventilatie

Isolatie

Dakisolatie, muurisolatie, vloerisolatie, dubbel glas

Verwarming

Cv ketel, vloerverwarming geheel

Warm water

Cv ketel

CV-ketel:

Intergas