Uitstekend onderhouden, zeer ruime gezinswoning met 4 zelfstandige units, gelegen op een groene en rustige toplocatie.
Op zoek naar een ruime en veelzijdige woning met eindeloze mogelijkheden? Dan is Chabotlaan 35 precies wat u zoekt. Deze uitstekend onderhouden tussenwoning met een royaal woonoppervlak van ca. 181 m² is verdeeld over vier woonlagen en bevat maar liefst vier zelfstandige appartementen ( etage woningen met eigen faciliteiten).
Een buitenkans voor wie wil investeren in verhuur, een oplossing zoekt voor samenwonen met studerende kinderen, mantelzorg of juist een royaal familiehuis wil creëren.
Locatie
De Chabotlaan is rustig gelegen in de wijk Jutphaas Wijkersloot, scholen
...
Uitstekend onderhouden, zeer ruime gezinswoning met 4 zelfstandige units, gelegen op een groene en rustige toplocatie.
Op zoek naar een ruime en veelzijdige woning met eindeloze mogelijkheden? Dan is Chabotlaan 35 precies wat u zoekt. Deze uitstekend onderhouden tussenwoning met een royaal woonoppervlak van ca. 181 m² is verdeeld over vier woonlagen en bevat maar liefst vier zelfstandige appartementen ( etage woningen met eigen faciliteiten).
Een buitenkans voor wie wil investeren in verhuur, een oplossing zoekt voor samenwonen met studerende kinderen, mantelzorg of juist een royaal familiehuis wil creëren.
Locatie
De Chabotlaan is rustig gelegen in de wijk Jutphaas Wijkersloot, scholen en kinderopvang zijn nabij. Op loopafstand van Cityplaza met winkels, horeca, theater, sportverenigingen en openbaar vervoer; ( Bus en sneltram richting Utrecht en Universiteit ). Met de auto zijn de uitvalswegen (A2/A12/A27) snel bereikbaar. Kortom, een ideale ligging voor gezinnen, forenzen of investeerders.
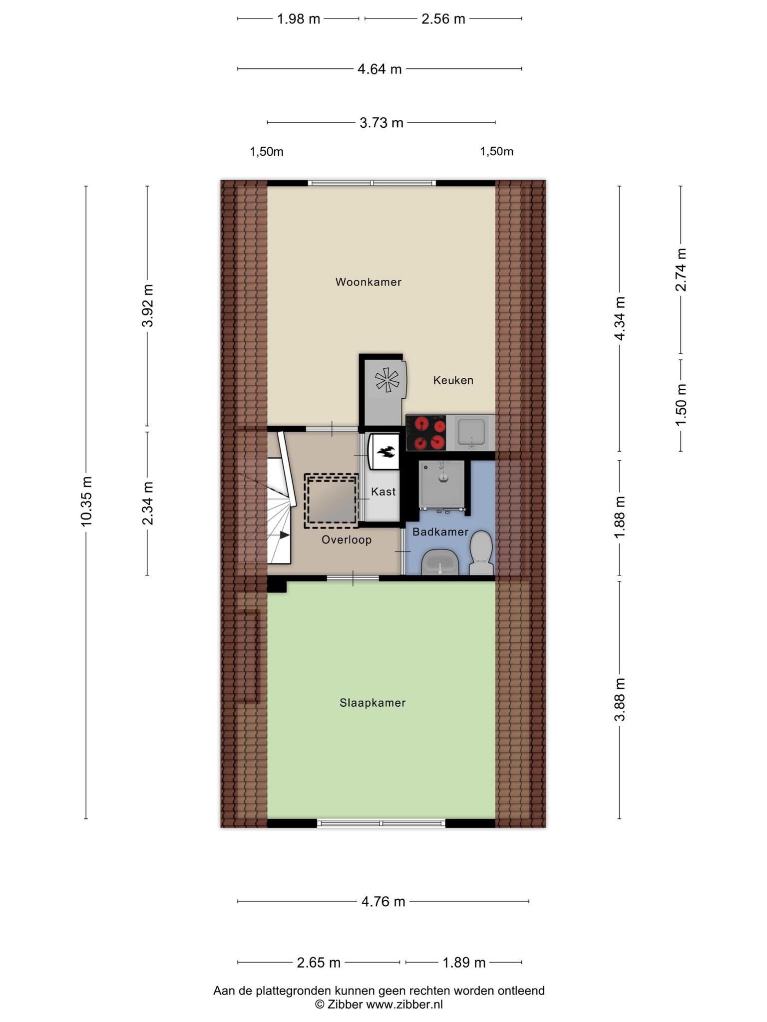
Indeling per woonlaag
Begane grond – Appartement 1
Entree met wasmachine- en droger aansluiting
Tussenhal met trapopgang naar de eerste verdieping, meterkast en toegang tot appartement 1
Woonkamer met toegang tot de zonnige achtertuin (zuid)
Halfopen keuken met elektrische kookplaat, afzuiger en koel-vriescombinatie
Badkamer met douche en wastafel
Separaat toilet
Slaapkamer aan de voorzijde van de woning
1e Verdieping – Appartement 2
Overloop met toilet
Keuken met elektrische kookplaat, afzuigkap en koel-vriescombinatie
Woonkamer aan de achterzijde met toegang tot het zonnige balkon (zuid) met een elektrisch zonnescherm.
Slaapkamer aan de voorzijde met toegang tot het tweede balkon (noord)
In de slaapkamer bevinden zich een douche en wastafel
2e Verdieping – Appartement 3
Overloop met twee vaste kasten en een separaat toilet
Keuken met elektrische kookplaat, afzuigkap, koel-vriescombinatie en een elektrische zonnescreen ( hor voor het kozijn )
Slaapkamer aan de achterzijde met wastafel en vaste kast en een elektrische zonnescreen ( hor voor het kozijn )
Woonkamer aan de voorzijde is met veel lichtinval
Badkamer met douche en wastafel
3e Verdieping – Appartement 4
Overloop met dakkoepel en vaste bergkast
Woonkamer met airconditioning en open keuken, voorzien van elektrische kookplaat, RVS-afzuigkap en koel en vrieskast
Slaapkamer aan de voorzijde met airconditioning
Badkamer met wastafel, douche en toilet
Technische ruimte met CV-installatie (Nefit 2018) en MV-unit
Buitenruimte & parkeren
De woning beschikt over een voor- en achtertuin en twee balkons.
De zonnige achtertuin op het zuiden is via de begane grond bereikbaar en biedt volop privacy.
Er is voldoende parkeerruimte direct voor de deur
Bijzonderheden:
Zeer goed onderhouden tussenwoning,woonoppervlak ca. 181 m2;
Instapklaar: U zet uw meubels neer en u kunt direct wonen!
Geschikt voor verhuur: vier zelfstandige appartementen met eigen voorzieningen;
Verhuurvergunning aanwezig en overdraagbaar;
Ook als royaal gezinshuis te gebruiken (weer samen te voegen tot één geheel);
Volledig voorzien van dubbele beglazing, kunststof (deels houten) kozijnen;
CV-installatie Nefit ( 2018 );
Airconditioning ( koelen en verwarmen ) ( 2019 ) op de bovenste etage;
Energielabel B;
Dak vernieuwd en geïsoleerd (2020);
Achtertuin op het zuiden met veel privacy;
2 ruime balkons;
gratis parkeren;
Gelegen in een rustige, groene en kindvriendelijke wijk nabij winkels, openbaar vervoer en uitvalswegen;
De ligging van je tuin is niet gespecificeerd. Echter, ongeacht de ligging, kan elke tuin worden omgetoverd tot een prachtige buitenruimte. Met de juiste planning en design kan je een tuin creëren die bij je levensstijl past en die je kunt genieten in elk seizoen. Of je nu houdt van tuinieren, buiten eten, of gewoon ontspannen in de open lucht, je tuin kan de perfecte plek zijn voor al deze activiteiten en nog veel meer.
Vul onderstaand formulier in om je direct in te schrijven voor de nieuwsbrief. Wij houden je graag op de hoogte van ons uitgelichte aanbod en weetjes over de woningmarkt.