Heerlijk licht en verrassend ruim 3-kamerappartement mét zonnig dakterras in hartje IJsselstein!
Ben je op zoek naar een goed onderhouden appartement (maisonnette) in het gezellige en historische centrum van IJsselstein? Dan is Doelenstraat 4a absoluut een bezichtiging waard! Het appartement, geheel gerenoveerd in 2022, is gelegen op de tweede en derde verdieping. Het pand wordt gedeeld met een winkel (begane grond) en een tweede appartement (eerste etage).
Locatie:
Gelegen in het centrum van IJsselstein, met alle voorzieningen (winkels, horeca en openbaar vervoer) op loopafstand.
Indeling:
Begane grond:
Gezamenlijke entree met brievenbussen.
Eerste verdieping:
Eigen entree van het appa
...
Heerlijk licht en verrassend ruim 3-kamerappartement mét zonnig dakterras in hartje IJsselstein!
Ben je op zoek naar een goed onderhouden appartement (maisonnette) in het gezellige en historische centrum van IJsselstein? Dan is Doelenstraat 4a absoluut een bezichtiging waard! Het appartement, geheel gerenoveerd in 2022, is gelegen op de tweede en derde verdieping. Het pand wordt gedeeld met een winkel (begane grond) en een tweede appartement (eerste etage).
Locatie:
Gelegen in het centrum van IJsselstein, met alle voorzieningen (winkels, horeca en openbaar vervoer) op loopafstand.
Indeling:
Begane grond:
Gezamenlijke entree met brievenbussen.
Eerste verdieping:
Eigen entree van het appartement.
Tweede verdieping (woonverdieping):
Overloop met intercom en toegang tot de keuken, het toilet, de woonkamer en twee slaapkamers (resp. 10 m² en 5,2 m²). De keuken is voorzien van diverse inbouwapparatuur: vaatwasser, 4-pits inductiekookplaat, rvs-afzuigkap, koelkast en combi-oven/magnetron. Vanuit de keuken is er direct toegang tot het zonnige dakterras (zuidoosten). en de badkamer. Deze is voorzien van mechanische ventilatie, douche, een wastafel met bergmeubel en een elektrische handdoekradiator.
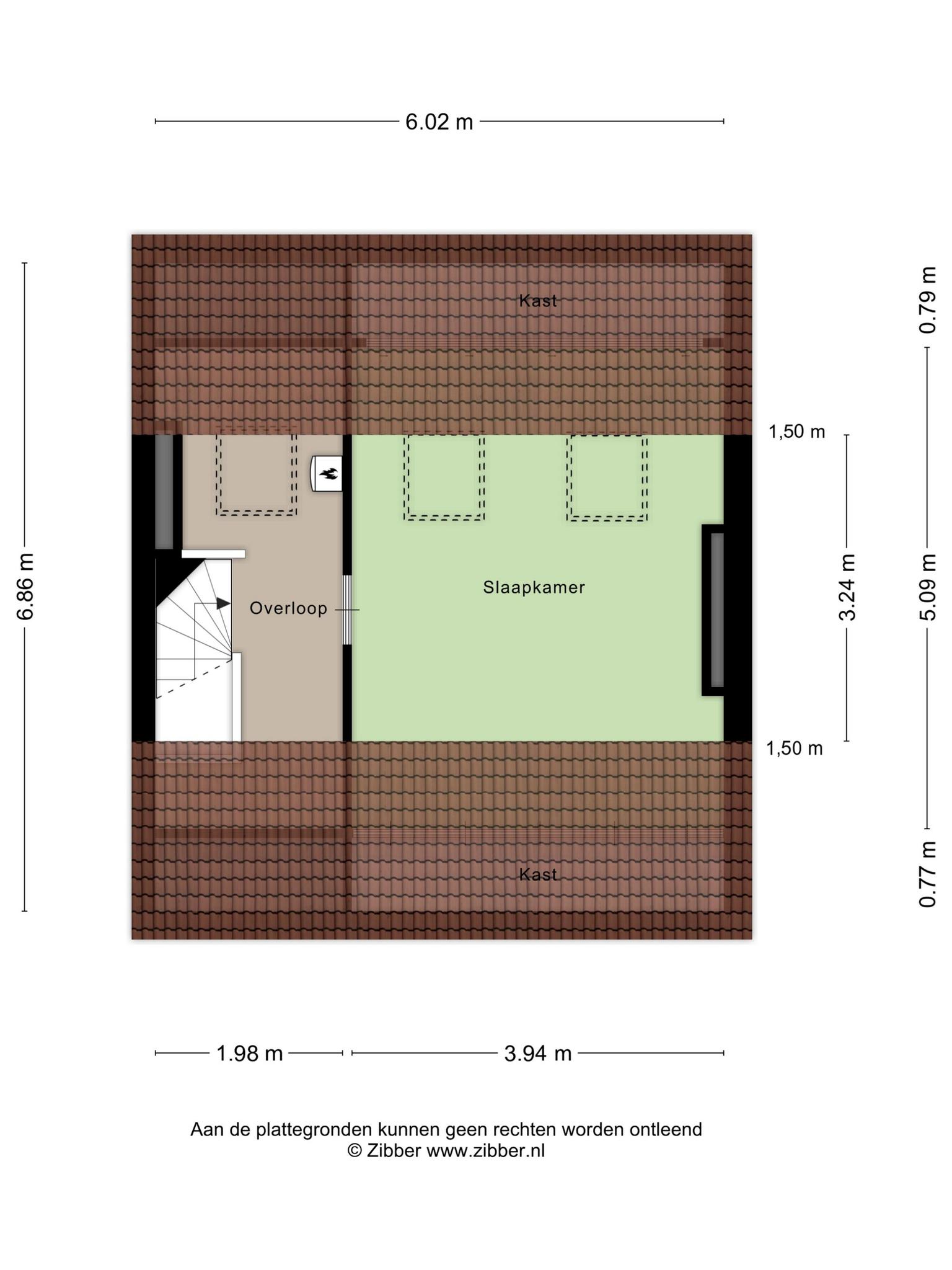
Derde verdieping (zolderverdieping):
Overloop met Velux dakraam, cv-opstelling (Intergas Xtreme, 2022) en wasmachineaansluiting. Toegang tot de ruime derde slaapkamer (ca. 13 m²), voorzien van twee Velux dakramen met verduisterende raambekleding en bergruimte onder de knieschotten.
Bijzonderheden:
Goed onderhouden maisonnette-appartement
Bouwjaar 1920, grootschalig gerenoveerd in 2022
Woning is voorzien van energielabel B
Alle elektra en schakelaars zijn in 2022 vervangen
Kozijnen voorzien van HR++ glas
Woonoppervlak 74 m²
Zonnig dakterras op het zuidoosten
3 slaapkamers
Ruime en lichte woonkamer met dakkapel
Cv-ketel Intergas Xtreme (2022)
Gelegen in het gezellige centrum van IJsselstein
Betaald parkeren en parkeervergunning (1e bewonersvergunning is gratis)
De ligging van je tuin is niet gespecificeerd. Echter, ongeacht de ligging, kan elke tuin worden omgetoverd tot een prachtige buitenruimte. Met de juiste planning en design kan je een tuin creëren die bij je levensstijl past en die je kunt genieten in elk seizoen. Of je nu houdt van tuinieren, buiten eten, of gewoon ontspannen in de open lucht, je tuin kan de perfecte plek zijn voor al deze activiteiten en nog veel meer.
Vul onderstaand formulier in om je direct in te schrijven voor de nieuwsbrief. Wij houden je graag op de hoogte van ons uitgelichte aanbod en weetjes over de woningmarkt.