Verkocht

Dommelstraat 9

3404 KD, Ijsselstein

Vierkante meter icoon

121 m2

6 Kamers

€ 475.000,- k.k.

Kan ik dit huis betalen?

Over deze woning

Royale 6-kamer eengezinswoning (121 m²) met zonnig terras aan het water en besloten voortuin.


Stel je voor: je schuift de brede pui in de woonkamer open, stapt het terras op en en hoort meteen het gekwaak van kikkers, het ruisen van de rietkragen en het zachte geplons van eenden en zwanen die voorbij glijden. Met een glas in de hand geniet je van de zon en het vrije uitzicht over het water. Hoe heerlijk is dat! Wonen aan de Dommelstraat 9 in IJsselstein geeft je een voortdurend vakantiegevoel!


Een toplocatie in een kindvriendelijke buurt

De wijk Zenderpark is levendig en kindvriendelijk: overal vind je speeltuintjes, kinderen spelen onbezorgd in de straat en Park Langeland ligt op loopafs

...

Ons team staat voor je klaar

Huis verkopen in IJsselstein met RobHuis te koop
Neem contact met ons op
030 688 3480
info@aarendonk.nl
Gratis advies
Persoonlijke aanpak
Uitgebreide bezichtigingen
Contact opnemen

Heb ik zon in mijn tuin?


De ligging van je tuin is niet gespecificeerd. Echter, ongeacht de ligging, kan elke tuin worden omgetoverd tot een prachtige buitenruimte. Met de juiste planning en design kan je een tuin creëren die bij je levensstijl past en die je kunt genieten in elk seizoen. Of je nu houdt van tuinieren, buiten eten, of gewoon ontspannen in de open lucht, je tuin kan de perfecte plek zijn voor al deze activiteiten en nog veel meer.

Algemene informatie

Aangeboden sinds:
dagen te koop
Aanvaarding:
In overleg
Soort woonhuis:
Eengezinswoning
Soort object:
Tussenwoning
Soort bouw:
Bestaande bouw
Bouwjaar:
2000

Grootte en oppervlakte

Gebruiksoppervlakten wonen:
121 m2
Overige inpandige ruimte:
Stookruimte, berging, wasruimte
Externe bergruimte:
10 m2
Perceel:
174 m2
Inhoud:
428 m3

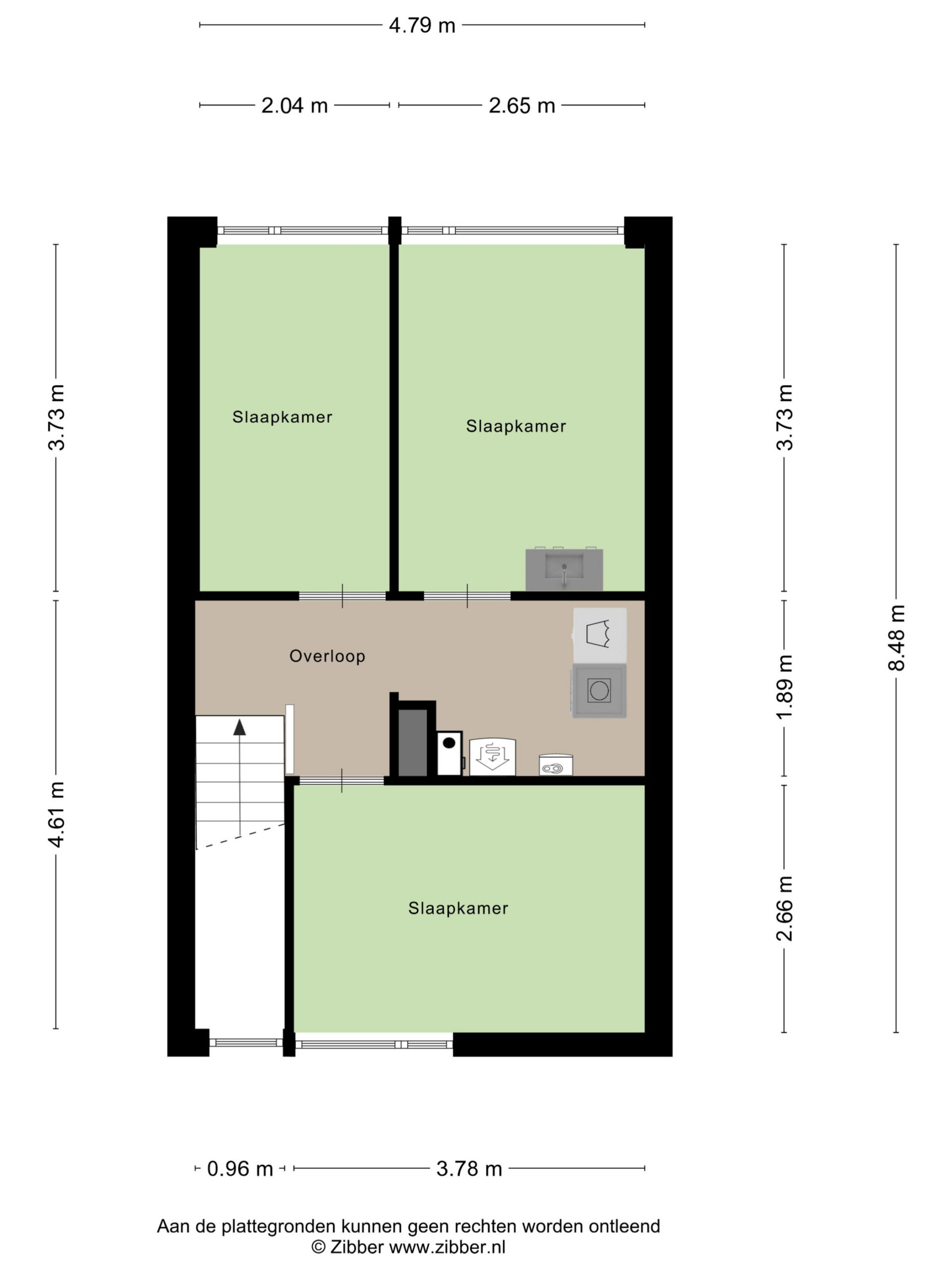
Kamers en indeling

Aantal kamers:
6
Aantal slaapkamers:
5

Buitenruimte

Kadastrale oppervlakte:
174 m2
Tuin oppervlakte:
34 m2
Soort dak:
Plat dak
Ligging tuin:
Noordoost
Soort buitenruimte:
Geen garage
Schuur/Berging soort:
Aangebouwd hout

Garage en parkeren

Garage isolatie:
Geen garage

Garage Voorzieningen

Parkeergelegenheid

Openbaar parkeren

Tuin

Voortuin

Ligging

Aan water, aan rustige weg, in woonwijk, vrij uitzicht

Voorzieningen

Mechanische ventilatie, rolluiken, tv kabel, buitenzonwering, airconditioning, schuifpui, glasvezel kabel, zonnepanelen, natuurlijke ventilatie

Isolatie

Dakisolatie, muurisolatie, vloerisolatie, dubbel glas

Verwarming

Cv ketel, vloerverwarming gedeeltelijk

Warm water

Cv ketel

CV-ketel:

Bosch