Ruime eengezinswoning met zonnige tuin aan het water in kindvriendelijke wijk
Bent u op zoek naar een riante woning op een prachtlocatie waar u helemaal uw eigen draai aan kunt geven? Aan de rustige en kindvriendelijke Eksterweg ligt deze fijne middenwoning met zonnige tuin op het zuiden. Een werkelijke toplocatie waarbij u vanuit de keuken schuin uitkijkt op de weilanden van het Groene Hart. Anderzijds staat u binnen 5 fietsminuten in het historische stadscentrum van IJsselstein met al zijn stadse voorzieningen en gemoedelijke karakter. De woning is dan wel eenvoudig en verdient modernisering, maar het biedt volop mogelijkheden om er een heerlijk gezinshuis van te maken. De vele kamers bie
...
Ruime eengezinswoning met zonnige tuin aan het water in kindvriendelijke wijk
Bent u op zoek naar een riante woning op een prachtlocatie waar u helemaal uw eigen draai aan kunt geven? Aan de rustige en kindvriendelijke Eksterweg ligt deze fijne middenwoning met zonnige tuin op het zuiden. Een werkelijke toplocatie waarbij u vanuit de keuken schuin uitkijkt op de weilanden van het Groene Hart. Anderzijds staat u binnen 5 fietsminuten in het historische stadscentrum van IJsselstein met al zijn stadse voorzieningen en gemoedelijke karakter. De woning is dan wel eenvoudig en verdient modernisering, maar het biedt volop mogelijkheden om er een heerlijk gezinshuis van te maken. De vele kamers bieden zelfs voor een groter gezin alle ruimte.
De ligging maakt het plaatje echt compleet: in een groene, rustige en gewilde buurt, waar kinderen veilig kunnen buitenspelen. Speeltuinen, scholen, parkje met kinderboerderij en sportvoorzieningen zijn in de directe omgeving aanwezig. Ook voor de dagelijkse boodschappen hoeft u niet ver, en met bus en tram in de buurt bent u zo onderweg. De achtertuin grenst bovendien aan het water, wat een speels en vrij gevoel geeft.
De bewoners hebben hier sinds de bouw in 1991 met veel plezier gewoond – dat zegt genoeg over de fijne woonomgeving! Dus, wanneer komt u kijken?
Indeling
Begane grond
Entree met hal, meterkast en toilet met fontein. Vanuit de hal bereikt u zowel de woonkamer als ook de aangebouwde stenen berging met praktische bergvliering. De woonkamer is tuingericht, voorzien van een trapkast en heeft een deur naar de achtertuin. Aan de voorzijde bevindt zich de keuken, eenvoudig uitgevoerd en voorzien van een losse koelkast, vriezer, 5-pits gaskookplaat en afzuigkap.
De achtertuin is diep, ligt heerlijk op het zonnige zuiden en grenst aan water. Een plek waar u kinderen ziet spelen en waar u zelf de hele dag kunt genieten van de zon of een gezellig terras. De voortuin is in het verleden samen met de buren aangelegd, wat meteen een gevoel van saamhorigheid in de straat geeft.
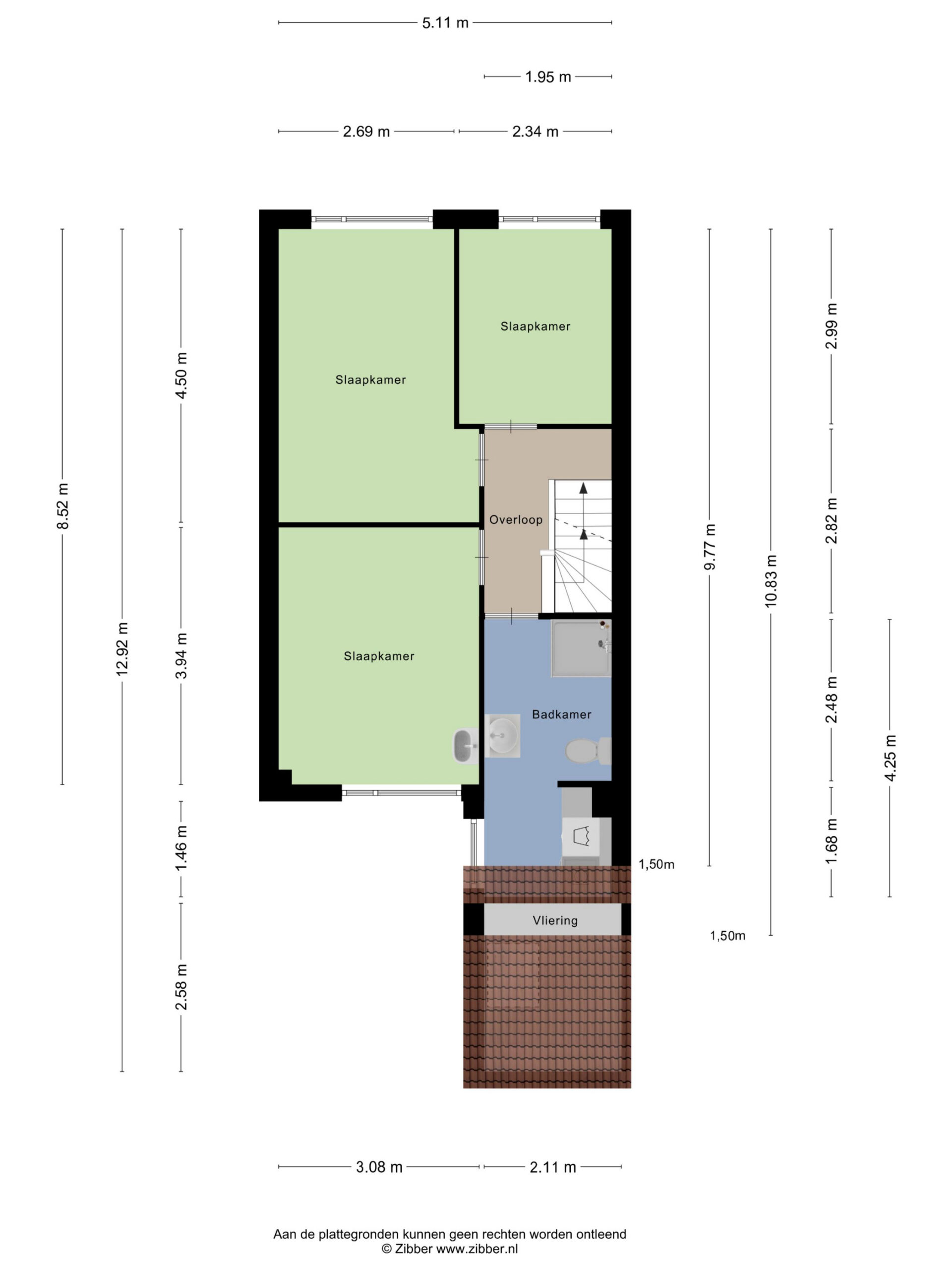
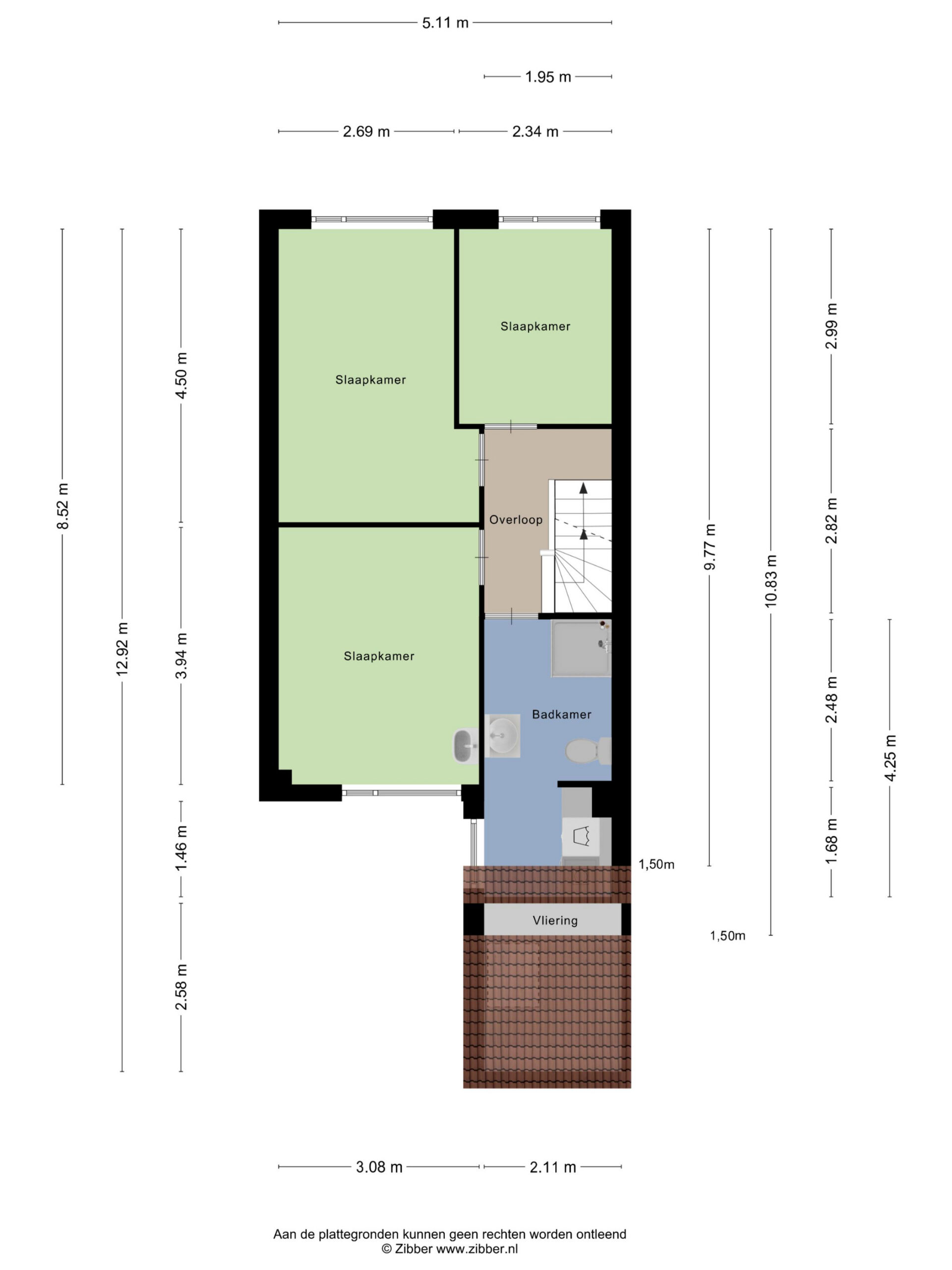
Eerste verdieping
Op de eerste verdieping zijn drie slaapkamers aanwezig. De twee kamers aan de achterzijde zijn voorzien van elektrische rolluiken. De badkamer is ruim en compleet met douche, toilet, wastafelmeubel en aansluitingen voor wasmachine en droger.
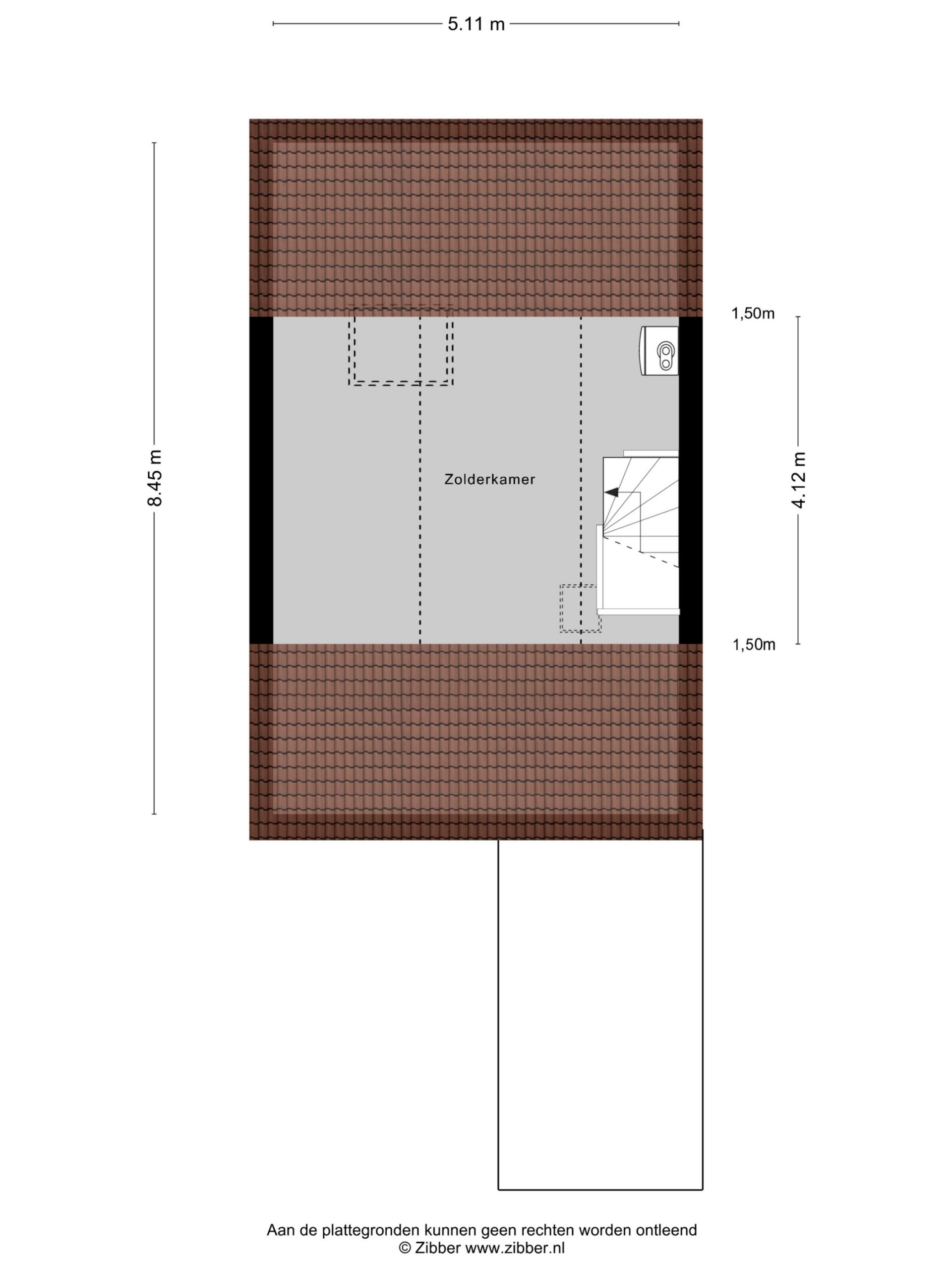
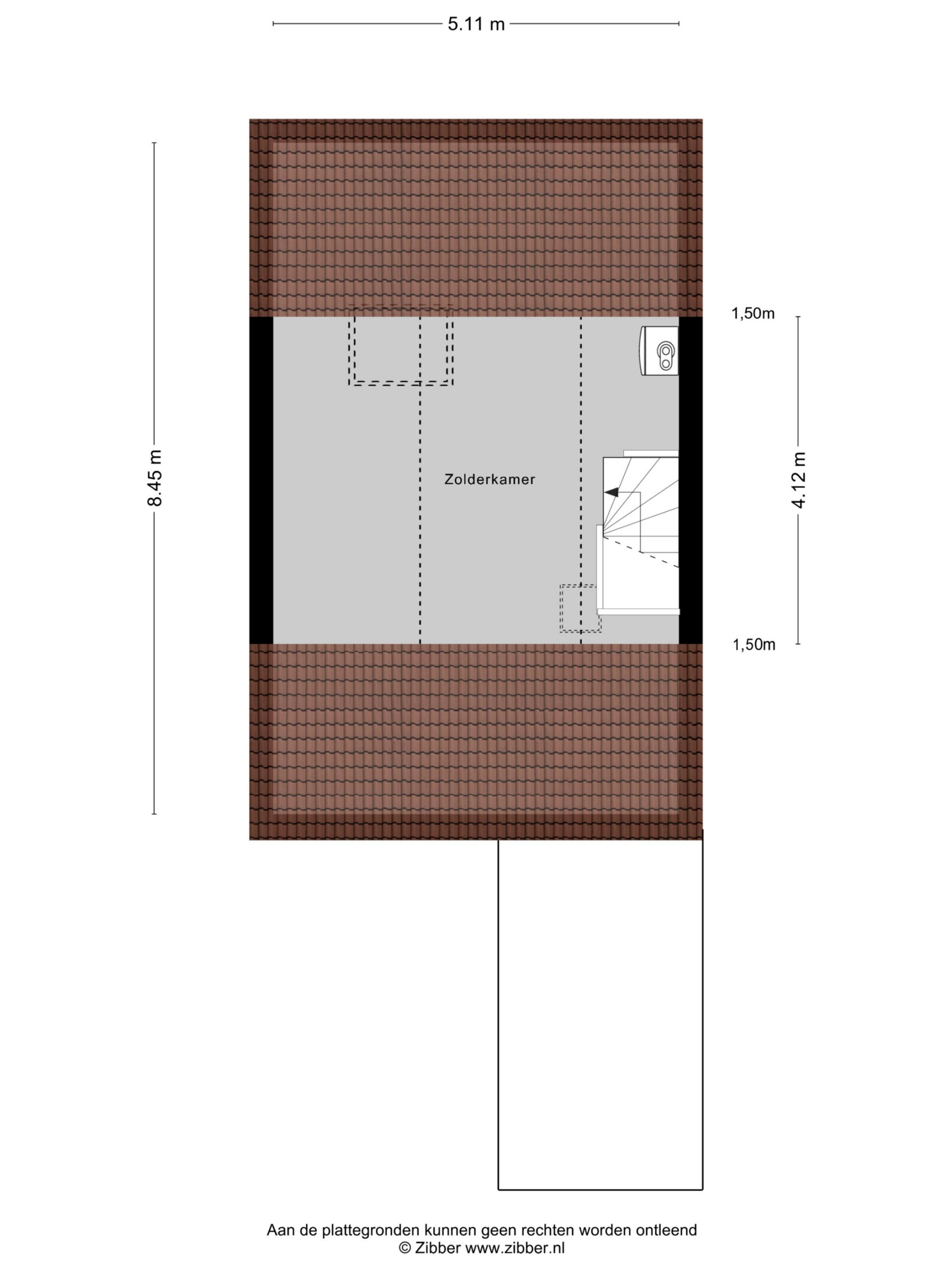
Tweede verdieping
Met een vaste trap bereikt u de ruime zolder met twee dakramen. Hier vindt u de CV-installatie (Vaillant, 2005) en volop bergruimte. Deze zolder is eenvoudig in te richten als vierde slaapkamer of als hobby-/werkkamer.
Bijzonderheden
• Gelegen in een rustige en kindvriendelijke woonwijk (Achterveld);
• Woning dient te worden gemoderniseerd;
• Voorzien van vloerverwarming (bijverwarming) op de begane grond;
• Groene omgeving nabij de weilanden van het Groene Hart;
• Zonnige achtertuin op het zuiden, direct aan het water;
• Aangebouwde stenen berging met handige bergvliering;
• 3 slaapkamers en ruime zolder met mogelijkheden voor extra kamer(s);
• Volledig geïsoleerd en energielabel A;
• In de koopovereenkomst worden extra clausules over niet-zelfbewoning en ouderdom opgenomen;
• Oplevering in overleg, kan snel.
Deze woning biedt de perfecte kans voor wie op zoek is naar een leuke gezinswoning in een kindvriendelijke buurt, en er niet voor terugdeinst om de handen uit de mouwen te steken.
De ligging van je tuin is niet gespecificeerd. Echter, ongeacht de ligging, kan elke tuin worden omgetoverd tot een prachtige buitenruimte. Met de juiste planning en design kan je een tuin creëren die bij je levensstijl past en die je kunt genieten in elk seizoen. Of je nu houdt van tuinieren, buiten eten, of gewoon ontspannen in de open lucht, je tuin kan de perfecte plek zijn voor al deze activiteiten en nog veel meer.
Vul onderstaand formulier in om je direct in te schrijven voor de nieuwsbrief. Wij houden je graag op de hoogte van ons uitgelichte aanbod en weetjes over de woningmarkt.