Knusse tussenwoning met zonnige tuin – perfect voor starters met twee rechterhanden!
Ben jij op zoek naar een leuke, betaalbare woning op een rustige plek, en zie je het als een kans om een huis helemaal naar jouw smaak te maken? Dan is deze 4-kamer tussenwoning (houtskeletbouw) aan de Houtduif 7 precies wat je zoekt! De woning ligt aan een autovrije straat in de groene, kindvriendelijke wijk Doorslag, op korte afstand van alle voorzieningen én het gezellige stadscentrum van Nieuwegein.
De woning is eenvoudig van uitvoering, maar biedt een fijne indeling met verrassend veel ruimte en mogelijkheden. Ideaal voor handige starters of klussers die op zoek zijn naar een woning met potentie. P
...
Knusse tussenwoning met zonnige tuin – perfect voor starters met twee rechterhanden!
Ben jij op zoek naar een leuke, betaalbare woning op een rustige plek, en zie je het als een kans om een huis helemaal naar jouw smaak te maken? Dan is deze 4-kamer tussenwoning (houtskeletbouw) aan de Houtduif 7 precies wat je zoekt! De woning ligt aan een autovrije straat in de groene, kindvriendelijke wijk Doorslag, op korte afstand van alle voorzieningen én het gezellige stadscentrum van Nieuwegein.
De woning is eenvoudig van uitvoering, maar biedt een fijne indeling met verrassend veel ruimte en mogelijkheden. Ideaal voor handige starters of klussers die op zoek zijn naar een woning met potentie. Pluspunten zoals een zonnige tuin op het zuiden, een slaapkamer en badkamer op de begane grond, en een houten schuur maken het plaatje compleet.
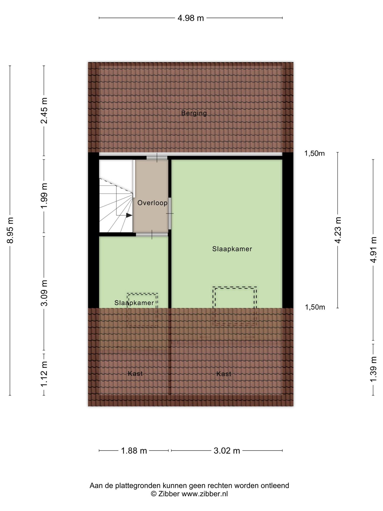
Indeling:
Begane grond:
Je komt binnen via de entree met garderobe en meterkast, waarin zich de stadsverwarmingsunit bevindt. De woon-/eetkamer met ruime trapkast heeft een kurkvloer en biedt een gezellige zithoek aan de voorzijde en een eethoek grenzend aan de keuken. Vanuit de tussenhal (met trapopgang naar de eerste verdieping) heb je toegang tot de badkamer (met douche en wastafel), het toilet, een ruime slaap-/werkkamer en de keuken. Deze ligt aan de tuinzijde en is uitgerust met een gasfornuis met oven en een losse koelkast. Via de keuken stap je de zonnige achtertuin in.
Eerste verdieping:
Onder de schuine kap vind je nog twee slaapkamers, beide met een Velux-dakraam en handige knieschotten voor extra opbergruimte. Vanaf de overloop is de bergruimte (met WTW-unit) bereikbaar.
Buitenruimte:
De woning heeft een voor- en achtertuin.
Geniet van de zon in de gezellige achtertuin op het zuiden, met een handige achterom en een houten berging met elektra.
Bijzonderheden:
• Eenvoudige 4-kamerwoning (houtskeletbouw), een uitgelezen kans voor handige starters!
• Slaap-/werkkamer en badkamer op de begane grond
• Verwarming en warm water via stadsverwarming
• Zonnige achtertuin met achterom en houten schuur
• Gelegen aan een autovrije straat in een rustige, groene wijk
• Nabij winkels, openbaar vervoer (sneltram en bus), scholen, ziekenhuis en sportvoorzieningen
• Gunstige ligging ten opzichte van uitvalswegen (A2 en A12)
De ligging van je tuin is niet gespecificeerd. Echter, ongeacht de ligging, kan elke tuin worden omgetoverd tot een prachtige buitenruimte. Met de juiste planning en design kan je een tuin creëren die bij je levensstijl past en die je kunt genieten in elk seizoen. Of je nu houdt van tuinieren, buiten eten, of gewoon ontspannen in de open lucht, je tuin kan de perfecte plek zijn voor al deze activiteiten en nog veel meer.
Vul onderstaand formulier in om je direct in te schrijven voor de nieuwsbrief. Wij houden je graag op de hoogte van ons uitgelichte aanbod en weetjes over de woningmarkt.