Instapklare eengezinswoning met zonnige achtertuin
Welkom aan de Jan van Arkelstraat 29 in Vianen – een goed afgewerkte eengezinswoning die je zó kunt betrekken.
Deze 5-kamer woning, met een woonoppervlak van 97 m2, is in 2022 grondig gemoderniseerd. Zo is er een moderne keuken geplaatst, is de begane grond voorzien van een lichte PVC-vloer, zijn alle kozijnen vernieuwd door kunststof kozijnen en is de tuin opnieuw aangelegd (onderhoudsarm) met keramische bestrating, nieuwe schuttingen en sfeervolle buitenverlichting.
Ook aan de isolatie is gewerkt: Vrijwel alle kozijnen hebben HR ++ glas en de buitenmuren zijn voorzien van spouwmuurisolatie.
De sfeervolle woning beschikt over een rui
...
Instapklare eengezinswoning met zonnige achtertuin
Welkom aan de Jan van Arkelstraat 29 in Vianen – een goed afgewerkte eengezinswoning die je zó kunt betrekken.
Deze 5-kamer woning, met een woonoppervlak van 97 m2, is in 2022 grondig gemoderniseerd. Zo is er een moderne keuken geplaatst, is de begane grond voorzien van een lichte PVC-vloer, zijn alle kozijnen vernieuwd door kunststof kozijnen en is de tuin opnieuw aangelegd (onderhoudsarm) met keramische bestrating, nieuwe schuttingen en sfeervolle buitenverlichting.
Ook aan de isolatie is gewerkt: Vrijwel alle kozijnen hebben HR ++ glas en de buitenmuren zijn voorzien van spouwmuurisolatie.
De sfeervolle woning beschikt over een ruime en zonnige woon/eetkamer met open keuken, 4 slaapkamers (één van de slaapkamers is nu in gebruik als kleedkamer grenzend aan de hoofdslaapkamer), een ruime badkamer, voldoende bergruimte en een fijne achtertuin met een extra grote schuur.
Kortom, dit is een zorgeloze gezinswoning die je zó kunt betrekken!
Locatie:
De ligging in de wijk De Hagen is ook prima: rustig, groen, kindvriendelijk en toch dicht bij alle voorzieningen. Scholen, winkels, speeltuintjes en uitvalswegen (A2 en A27) bevinden zich op korte afstand, en het oude centrum van Vianen ligt op loopafstand.
Indeling:
Begane grond
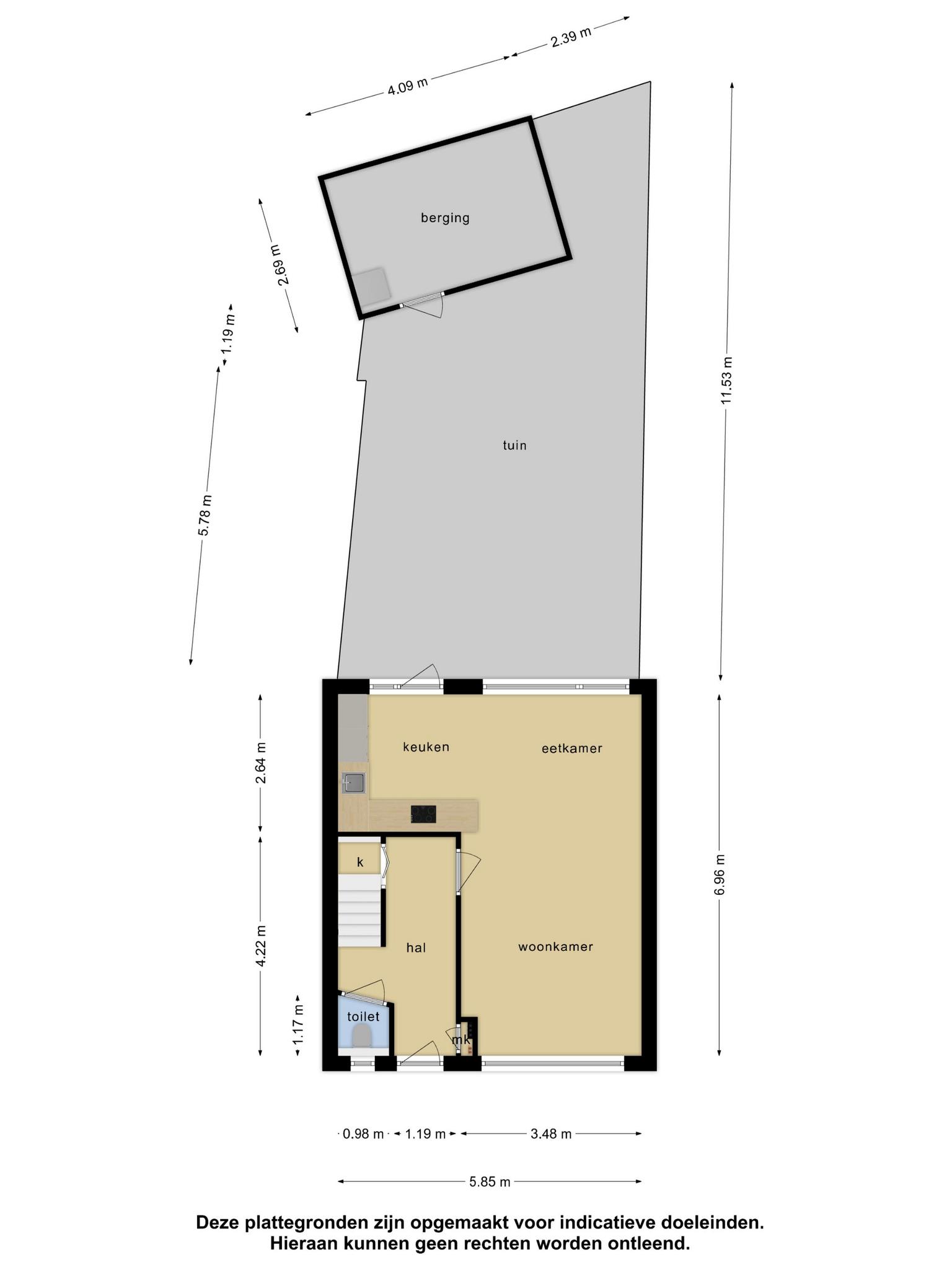
De ruime en lichte hal biedt toegang tot de meterkast, het moderne toilet, een handige trapkast en de trapopgang (met trede-verlichting) naar de eerste verdieping. Rechtdoor lopen we naar de woon/eetkamer met open keuken. De zithoek ligt aan de voorzijde van de woning, de eethoek en keuken bevinden zich aan de tuinzijde. De sfeervolle keuken met houtprint kastjes, moderne zwarte wandtegels en kunststof werkblad is voorzien van diverse inbouwapparatuur: een heteluchtoven, een vaatwasser, een 5-pits gaskookplaat, een afzuigkap en een grote koelkast met vriesvak. De kunststof glaspui met brede achterdeur maakt de keuken heerlijk licht.
Eerste verdieping
Op de eerste verdieping is de voormalige indeling met drie slaapkamers slim aangepast. De royale hoofdslaapkamer aan de achterzijde is uitgebreid met een kleedkamer voorzien van een vaste kastenwand – ideaal voor wie houdt van ruimte en overzicht. Deze kleedkamer kan desgewenst ook eenvoudig weer dienstdoen als derde slaapkamer. Aan de voorzijde ligt een tweede ruime slaapkamer. Hier is de voorbereiding aanwezig voor een elektrisch rolluik. De badkamer is uitgerust met vloerverwarming, een douchehoek, een wastafel met bergmeubel, verwarmde spiegel, een tweede toilet, inbouwspots en mechanische ventilatie. Op de overloop bevindt zich bovendien een praktische wasruimte met aansluitingen voor wasmachine en droger.
Tweede verdieping
De zolderverdieping is een volwaardige extra leefruimte dankzij de kunststof dakopbouw met draai-kiepramen en elektrische rolluiken. De voorzolder biedt plaats aan de cv-installatie (Remeha Tzerra, 2013) en extra opbergruimte in de knieschotten en een inbouwkast. De slaapkamer op zolder is verrassend licht dankzij het grote kunststof raam aan de achterzijde en een Velux dakraam aan de voorzijde. Ook hier is alles keurig afgewerkt, zodat deze ruimte perfect kan dienen als extra slaapkamer, werk- of hobbykamer.
Buitenruimte
De achtertuin is gelegen op het zonnige zuiden. Deze is in 2022 opnieuw (onderhoudsvriendelijk) aangelegd met gevoegde keramische tegels en drainage, waardoor onkruid geen kans krijgt. Dankzij de brede, dubbele achterdeuren is de tuin ook uitstekend toegankelijk voor bijvoorbeeld een motor of bakfiets. Verder beschikt de tuin over een grote stenen schuur met elektra, een buitenkraan, sfeervolle tuinverlichting en een achterom die uitkomt op een rustig parkeerhofje. Rondom de woning is bovendien altijd voldoende parkeergelegenheid.
Bijzonderheden:
Goed onderhouden eengezins-tussenwoning;
Gelegen in de geliefde wijk “De Hagen”;
In 2022 gerenoveerd; voorzien van nieuwe keuken, kunststof kozijnen met dubbel- en HR ++ glas,
spouwmuurisolatie, nieuwe pvc-vloer op de begane grond;
Deels voorzien van elektrische rolluiken, voorbereiding voor een rolluik op de slaapkamer;
De achtertuin is in 2022 geheel vernieuwd inclusief nieuwe schuttingen;
Extra brede tuindeur, zeer geschikt voor motorrijders of een bakfiets;
Voldoende parkeergelegenheid in de directe omgeving;
De ligging van je tuin is niet gespecificeerd. Echter, ongeacht de ligging, kan elke tuin worden omgetoverd tot een prachtige buitenruimte. Met de juiste planning en design kan je een tuin creëren die bij je levensstijl past en die je kunt genieten in elk seizoen. Of je nu houdt van tuinieren, buiten eten, of gewoon ontspannen in de open lucht, je tuin kan de perfecte plek zijn voor al deze activiteiten en nog veel meer.
Vul onderstaand formulier in om je direct in te schrijven voor de nieuwsbrief. Wij houden je graag op de hoogte van ons uitgelichte aanbod en weetjes over de woningmarkt.