Geschakelde villa aan het water – luxe, rust en ruimte aan de rand van het geliefde Zenderpark.
Dit is een ware eyecatcher, deze indrukwekkende villa aan de Lekstraat 1!
De woning (met een royaal woonoppervlak van 183 m2) ligt direct aan het (deels eigen) water, met vrij uitzicht over de groene omgeving. Hier word je wakker met het ruisen van het riet, het zonlicht dat over het water glinstert en het gezang van vogels — een plek waar elke dag als vakantie voelt.
De woning is gebouwd in 2001 en tot in de puntjes verzorgd. Met vijf slaapkamers, twee badkamers, een riante, 3 meter hoge woonkamer met indrukwekkende glaspui en een fraai aangelegde tuin aan het water, biedt deze villa alles
...
Geschakelde villa aan het water – luxe, rust en ruimte aan de rand van het geliefde Zenderpark.
Dit is een ware eyecatcher, deze indrukwekkende villa aan de Lekstraat 1!
De woning (met een royaal woonoppervlak van 183 m2) ligt direct aan het (deels eigen) water, met vrij uitzicht over de groene omgeving. Hier word je wakker met het ruisen van het riet, het zonlicht dat over het water glinstert en het gezang van vogels — een plek waar elke dag als vakantie voelt.
De woning is gebouwd in 2001 en tot in de puntjes verzorgd. Met vijf slaapkamers, twee badkamers, een riante, 3 meter hoge woonkamer met indrukwekkende glaspui en een fraai aangelegde tuin aan het water, biedt deze villa alles wat je zoekt — en meer.
Een toplocatie in een kindvriendelijke buurt
De woning ligt in het groene en kindvriendelijke Zenderpark, De rivieren . Hier liggen alle voorzieningen binnen handbereik. Diverse scholen, kinderdagverblijven, winkels en openbaar vervoer (sneltram en busverbindingen) zijn op loopafstand. Binnen enkele minuten sta je in het bruisende stadscentrum van IJsselstein, met gezellige horecagelegenheden, een theater en een bioscoop. Dankzij de gunstige ligging nabij de A2 en N210 zijn Utrecht, Nieuwegein en Gouda uitstekend bereikbaar.
Indeling
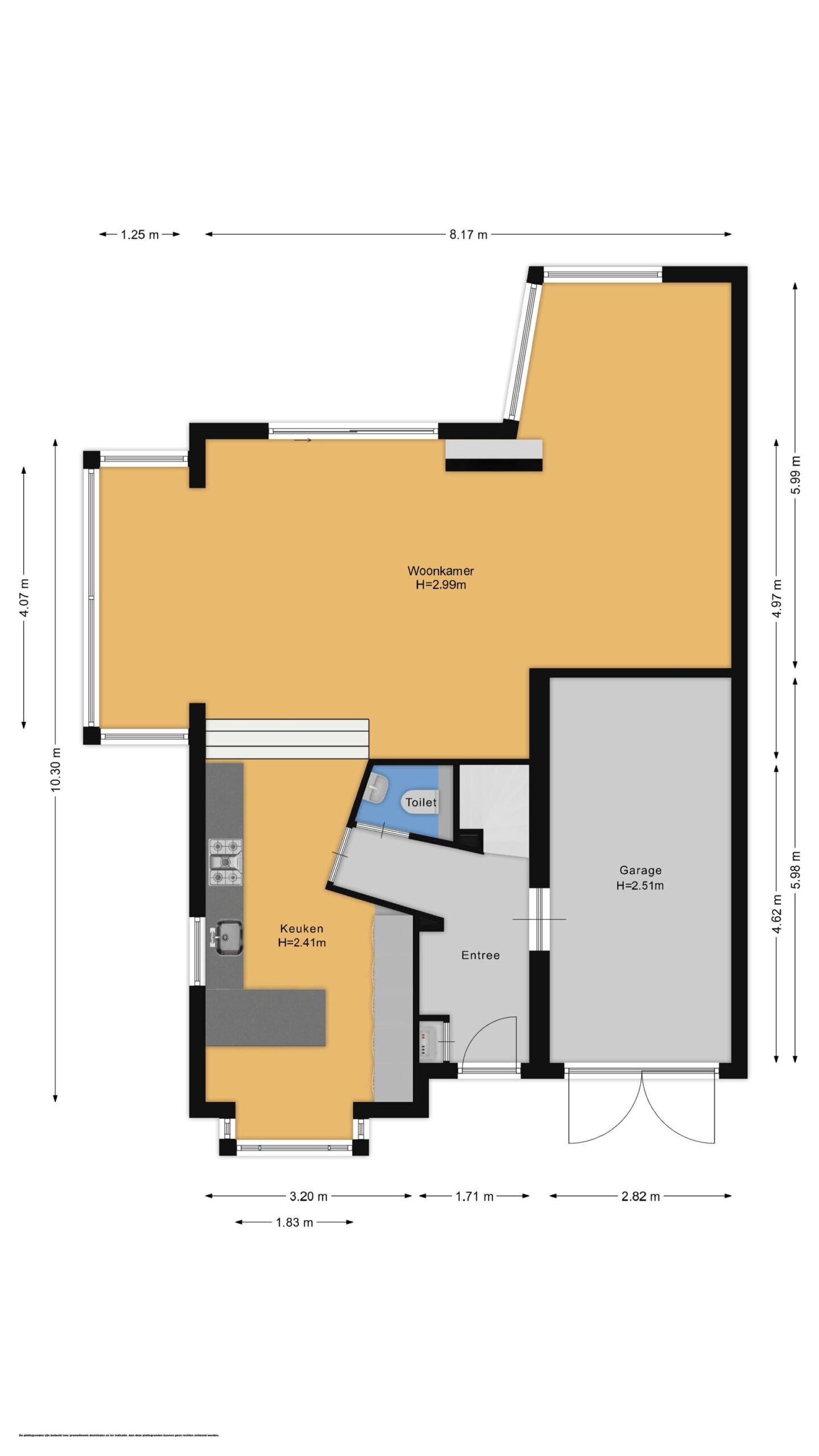
Begane grond
Aan de voorzijde is ruimte voor het parkeren van twee auto’s op eigen terrein, indien gewenst is de laadpaal ter overname. De ruime entree met garderobe en de prachtige designradiator “Heatwave” van Jaga geeft meteen de stijlvolle toon aan. De inpandige garage is ook bereikbaar vanuit de entree en is voorzien van verwarming, waterontharder en een uitstortgootsteen.
We lopen door naar de keuken en woon/eetkamer.
De handgemaakte eiken keuken (2019) ligt aan de voorzijde en is een droom voor kookliefhebbers. Met een composiet werkblad, Bora inductiekookplaat met geïntegreerde afzuiging, 7-liter Quooker, wijnkoelkast, vaatwasser, combi-oven/magnetron en koel-vriescombinatie is alles aanwezig. De eetbar en dimbare verlichting zorgen voor sfeer en gezelligheid.
Vanuit de keuken kijk je over de sfeervolle, twee treden lager gelegen woonkamer met een hoogte van 3 meter en een grote glaspui met schuifdeur naar de tuin.
Het uitzicht door deze hoge ramen is werkelijk uniek: de tuin, de brede vlonder, het kabbelende water en het weelderige groen vormen één rustgevend panorama.
De woonkamer beschikt over een gashaard, grote, op maat gemaakte (boeken)kast en elektrische screens.
Eerste verdieping
De overloop met separaat toilet leidt naar twee ruime slaapkamers.
De hoofdslaapkamer aan de achterzijde is een heerlijke, lichte ruimte met shutters, elektrische rolluiken, grote kastenwand en een prachtig vrij uitzicht over het water en het groen – hier komt de ochtendzon zachtjes binnen en geniet je van een heerlijke rust.
De tweede ruime slaapkamer aan de voorzijde beschikt over een ruime inloopkast en elektrische rolluiken.
De uitgebouwde badkamer beschikt over een ligbad met jacuzzi, ruime inloopdouche, dubbele wastafel met hardstenen blad, verwarmde spiegel, designradiator en elektrische vloerverwarming.
Tweede verdieping
Op de tweede verdieping bevinden zich nog eens drie slaapkamers, een tweede badkamer en een praktische stook-/wasruimte. Vanaf de overloop is de ruime bergvliering bereikbaar.
De achterste slaapkamer heeft een slaapvide en breed uitzicht op het water en de groene singel – een heerlijk lichte kamer met karakter.
De overige twee slaapkamers zijn ook in te delen als kantoor, wasruimte of logeerkamer.
De tweede badkamer beschikt over een douche en modern wastafelmeubel.
In de technische ruimte bevinden zich de Nefit HR-ketel, zonneboiler, mechanische ventilatie-unit (2025) en een aparte stoppenkast voor de 21 zonnepanelen (2018).
Tuin – een privéparadijs aan het water
De tuin is een absolute blikvanger en verlengstuk van het huis. Gelegen op het zuidwesten, met de hele dag zon en een breed uitzicht over het water en het groen, is dit een plek waar je wilt blijven.
De tuin is aangelegd met composiet vlonders, brede buitenzonwering, buitenverlichting op timer, buitenkraan, regenton en een houten berging.
Bijzonderheden
Bouwjaar 2001;
Geschakelde villa op royale kavel van 648 m² (deels water);
Direct aan het water (deels eigen water) met vrij uitzicht op de groene omgeving;
Zuidwest ligging – optimale zon en privacy;
21 zonnepanelen met individuele omvormers (2018);
Laadpaal voor elektrische auto (ter overname);
Inpandige garage met verwarming, waterontharder en tegelvloer;
Vijf slaapkamers, twee badkamers;
Zonneboiler, extra gasboiler, nieuwe MV-unit (2025);
Parkeren op eigen terrein voor twee auto’s;
Schilderwerk buitenzijde woning gedaan in 2022;
Scholen, centrum IJsselstein, winkels en openbaar vervoer op loopafstand;
Oplevering in overleg.
Kortom;
De Lekstraat 1 biedt het beste van twee werelden: het gevoel van vrijheid en rust aan het water, gecombineerd met de luxe, ruimte en duurzaamheid van een moderne villa. Een plek waar binnen en buiten naadloos in elkaar overgaan — en waar elke dag voelt als thuiskomen.
Ervaar zelf de unieke ligging en de luxe leefruimte van deze bijzondere woning – maak snel een afspraak voor een bezichtiging!
De ligging van je tuin is niet gespecificeerd. Echter, ongeacht de ligging, kan elke tuin worden omgetoverd tot een prachtige buitenruimte. Met de juiste planning en design kan je een tuin creëren die bij je levensstijl past en die je kunt genieten in elk seizoen. Of je nu houdt van tuinieren, buiten eten, of gewoon ontspannen in de open lucht, je tuin kan de perfecte plek zijn voor al deze activiteiten en nog veel meer.
Vul onderstaand formulier in om je direct in te schrijven voor de nieuwsbrief. Wij houden je graag op de hoogte van ons uitgelichte aanbod en weetjes over de woningmarkt.