Welkom aan de Rietzangerlaan 7 — een heerlijke, ruime gezinswoning in de geliefde en kindvriendelijke wijk Achterveld. Met een royaal woonoppervlak van circa 142 m² heeft deze woning alles in zich om jouw volgende fijne thuis te worden: een lichte en zonnige woonkamer, vier ruime slaapkamers, een grote garage, een sfeervolle tuin én een geweldige ligging vlak bij scholen, speelveldjes en wandelpaden langs de weilanden.
Indeling:
Begane grond
Zodra je aankomt, voel je het direct: hier woon je rustig, groen en comfortabel. Voor de woning is ruimte om je auto op eigen terrein te parkeren, en ook de inpandige garage biedt volop plek voor de a
...
Ruimte, warmte en woongeluk voor het hele gezin
Welkom aan de Rietzangerlaan 7 — een heerlijke, ruime gezinswoning in de geliefde en kindvriendelijke wijk Achterveld. Met een royaal woonoppervlak van circa 142 m² heeft deze woning alles in zich om jouw volgende fijne thuis te worden: een lichte en zonnige woonkamer, vier ruime slaapkamers, een grote garage, een sfeervolle tuin én een geweldige ligging vlak bij scholen, speelveldjes en wandelpaden langs de weilanden.
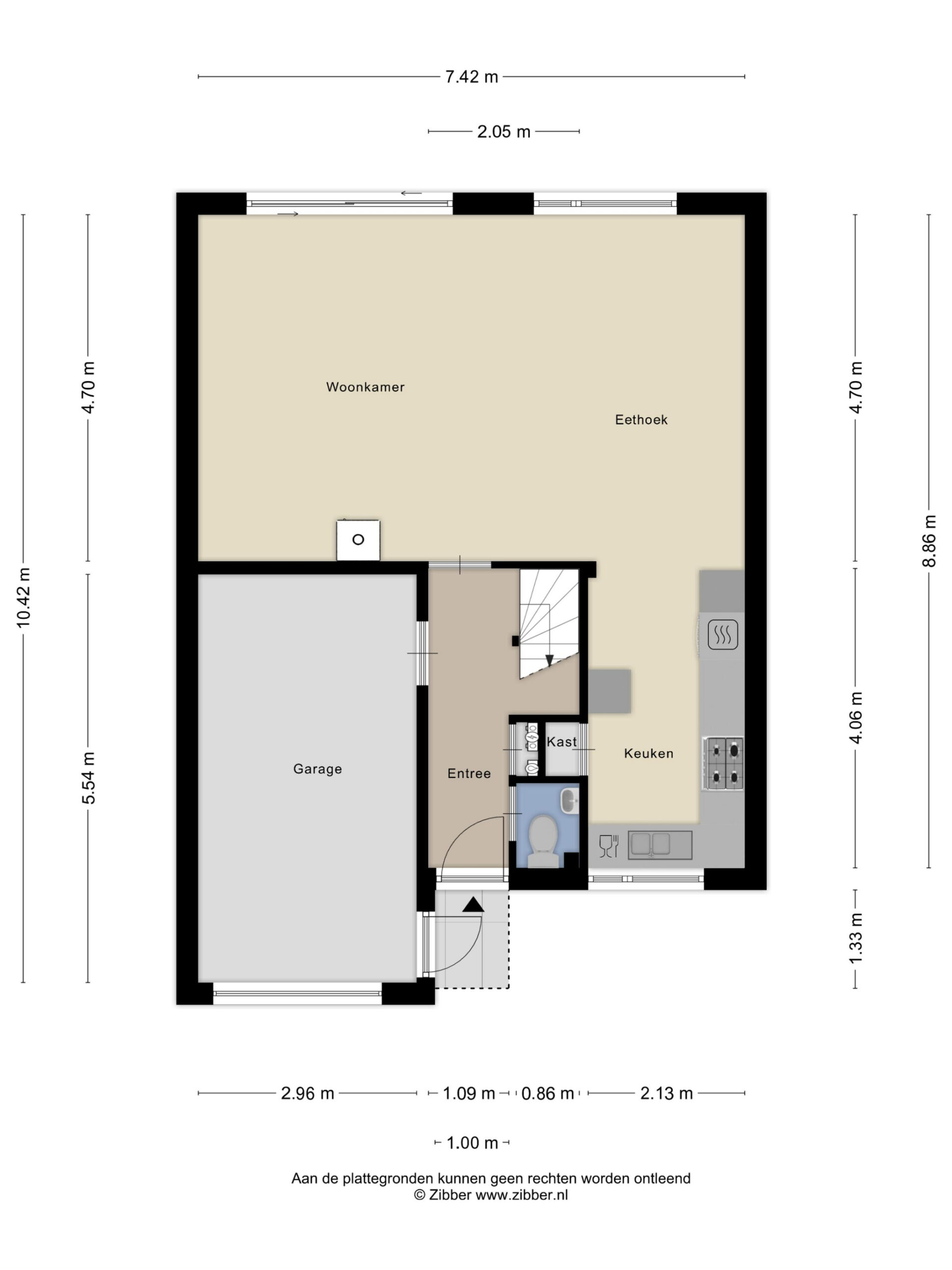
Indeling:
Begane grond
Zodra je aankomt, voel je het direct: hier woon je rustig, groen en comfortabel. Voor de woning is ruimte om je auto op eigen terrein te parkeren, en ook de inpandige garage biedt volop plek voor de auto, fietsen en hobbyspullen.
Binnen word je verwelkomd in een lichte entree met meterkast, garderobe, de trapopgang. Vanuit hier loop je door naar de ruime woonkamer, waar het dankzij het vele daglicht meteen prettig aanvoelt.
De brede schuifpui (gerenoveerd in 2024) verbindt binnen en buiten moeiteloos met elkaar. In de winter zorgt de houtkachel voor een gezellige sfeer, terwijl je in de zomer de pui openzet en het dagelijkse leven vanzelf naar buiten verplaatst.
En die tuin… dat is écht een pareltje! Dankzij de zonnige ligging op het westen geniet je hier tot laat in de avond van het buitenleven. Op het ruime zonneterras, onder het comfortabele elektrische zonnescherm, is het heerlijk ontspannen. De fraaie borders en de grote vijver met sierplanten zorgen voor een stijlvolle en rustgevende sfeer — de perfecte plek voor lange zomeravonden met familie en vrienden.
Aan de voorzijde van de woning ligt de keuken. Deze is praktisch én stijlvol ingericht, met een fraai granieten werkblad, een vijfpits gaskookplaat met wokbrander, een heteluchtoven, een hetelucht/stoomoven en een vrijstaande kast met koelkast en vriezer. Je hebt hier alle ruimte om uitgebreid te koken en gezellig samen te zijn.
Eerste verdieping
Boven bevindt zich een ruime overloop met toegang tot het tweede separate toilet, drie royale slaapkamers en een nette badkamer. De hoofdslaapkamer (ca. 13 m²) aan de achterzijde is voorzien van handmatig bedienbare zonnescreens, ideaal tijdens warme zomerdagen. De tweede ruime slaapkamer (ca. 11,3 m²) ligt ook aan de achterzijde en heeft ook een zonnescreen. Aan de voorzijde ligt een sfeervolle kamer (ca. 12 m²) met openslaande deuren naar het balkon — perfect als slaapkamer of werkkamer. De badkamer is compleet ingericht met een ligbad, douche en wastafel.
Tweede verdieping
De zolder is een echte verrassing. Hier vind je een ruime voorzolder met aansluitingen voor wasapparatuur, handige bergruimte en eventueel plek voor een werkhoek. Daarnaast is er een royale slaapkamer (ca. 14,5 m²) met een Frans balkon. Dankzij het hoge plafond en de bergruimte achter de knieschotten is deze verdieping licht, ruim en multifunctioneel. Wil je nog een extra kamer of een vliering? Deze kan hier heel eenvoudig gerealiseerd worden.
De buurt
De Rietzangerlaan ligt in een rustige, groene straat — ideaal voor gezinnen. Vlakbij is een groot speelveld waar kinderen veilig kunnen spelen. Scholen, kinderopvang en BSO liggen op loopafstand. En als je even wilt ontspannen in de natuur, wandel je zo het wandelpad langs de weilanden op. Perfect voor een avondwandeling, fietstocht of sportieve ronde in de buitenlucht. Anderzijds is het gezellige en sfeervolle IJsselsteinse centrum binnen 10 fietsminuten bereikbaar.
Je woont hier rustig en ruim, met alle voorzieningen binnen handbereik. Precies die combinatie maakt deze locatie zo geliefd.
Bijzonderheden
• Bouwjaar: 1988
• Perceeloppervlakte: ca. 195 m²
• Woonoppervlakte: ca. 142 m² (excl. garage!)
• Woning is reeds bouwkundig gekeurd
• Parkeerplaats op eigen terrein
• Energielabel A – volledig geïsoleerd en voorzien van dubbele beglazing, deels HR++ glas
• Verwarming en warm water via Intergas cv-combiketel (2024)
• Vloerverwarming in keuken en woonkamer
• Mechanische ventilatie vernieuwd in 2024
• Schuifpui gerenoveerd in 2024, voorzien van rolhor
De ligging van je tuin is niet gespecificeerd. Echter, ongeacht de ligging, kan elke tuin worden omgetoverd tot een prachtige buitenruimte. Met de juiste planning en design kan je een tuin creëren die bij je levensstijl past en die je kunt genieten in elk seizoen. Of je nu houdt van tuinieren, buiten eten, of gewoon ontspannen in de open lucht, je tuin kan de perfecte plek zijn voor al deze activiteiten en nog veel meer.
Vul onderstaand formulier in om je direct in te schrijven voor de nieuwsbrief. Wij houden je graag op de hoogte van ons uitgelichte aanbod en weetjes over de woningmarkt.