Verkocht

Rijksstraatweg 80 A

3454 JE, De meern

Vierkante meter icoon

125 m2

5 Kamers

€ 725.000,- k.k.

Kan ik dit huis betalen?

Over deze woning

Royale 2-onder-1-kap woning met grote garage, zonnige tuin én uitzicht op de Leidsche Rijn!


Deze ruime eengezinswoning biedt alles wat je wenst: veel ruimte (125 m2 woonoppervlak), volop licht, een royale oprit, een grote vrijstaande garage en een heerlijke grote tuin op het zuiden. Dit alles is gelegen op een perceel van 313 m2.

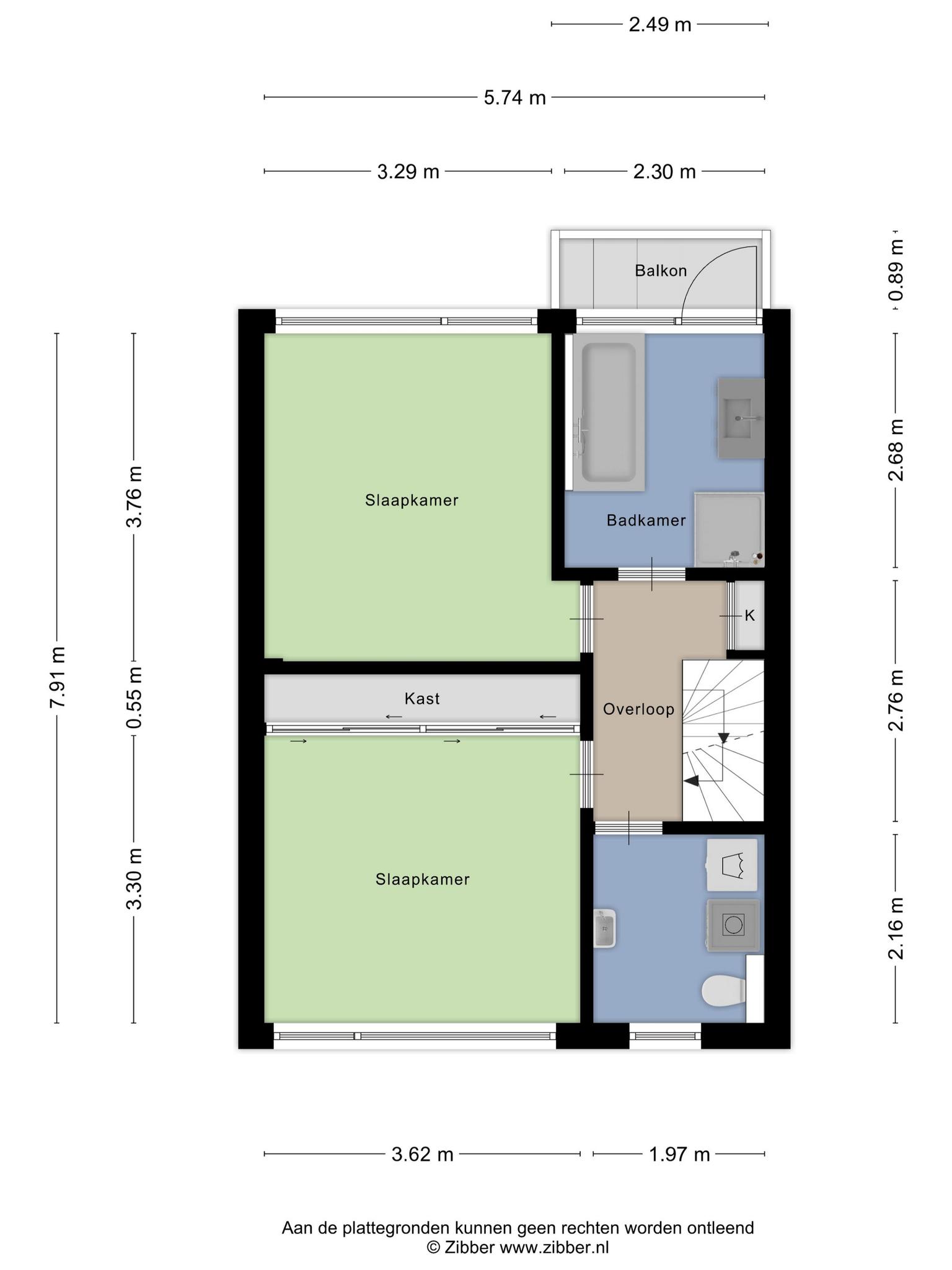
In de huidige indeling beschikt de woning over 3 ruime slaapkamers en een werk/hobbykamer. De slaapkamers zijn echter ruim genoeg om te splitsen en daardoor meer slaapkamers te creëren. Kortom, deze woning biedt meer dan genoeg leefruimte voor het hele gezin.


Locatie

De ligging van de woning is ideaal. Alle voorzieningen liggen op korte afstand: scholen, sport

...

Ons team staat voor je klaar

Huis verkopen in IJsselstein met Rob
Neem contact met ons op
030 688 3480
info@aarendonk.nl
Gratis advies
Persoonlijke aanpak
Uitgebreide bezichtigingen
Contact opnemen

Heb ik zon in mijn tuin?


De ligging van je tuin is niet gespecificeerd. Echter, ongeacht de ligging, kan elke tuin worden omgetoverd tot een prachtige buitenruimte. Met de juiste planning en design kan je een tuin creëren die bij je levensstijl past en die je kunt genieten in elk seizoen. Of je nu houdt van tuinieren, buiten eten, of gewoon ontspannen in de open lucht, je tuin kan de perfecte plek zijn voor al deze activiteiten en nog veel meer.

Algemene informatie

Aangeboden sinds:
maanden te koop
Aanvaarding:
In overleg
Soort woonhuis:
Eengezinswoning
Soort object:
Twee onder een kapwoning
Soort bouw:
Bestaande bouw
Bouwjaar:
1971

Grootte en oppervlakte

Gebruiksoppervlakten wonen:
125 m2
Overige inpandige ruimte:
Stookruimte, berging, dakkapel, overloop
Externe bergruimte:
34 m2
Perceel:
313 m2
Inhoud:
441 m3

Kamers en indeling

Aantal kamers:
5
Aantal slaapkamers:
4
Aantal badkamers:
1

Buitenruimte

Kadastrale oppervlakte:
313 m2
Tuin oppervlakte:
229 m2
Soort dak:
Zadeldak
Ligging tuin:
Zuid
Soort buitenruimte:
Vrijstaand steen
Schuur/Berging soort:
Vrijstaand hout

Garage en parkeren

Garage capaciteit:
1
Garage isolatie:
Vrijstaand steen

Garage Voorzieningen

Elektra

Parkeergelegenheid

Openbaar parkeren, op eigen terrein

Tuin

Achtertuin, voortuin, zijtuin

Ligging

Vrij uitzicht, aan vaarwater

Voorzieningen

Mechanische ventilatie, tv kabel, rookkanaal, natuurlijke ventilatie

Isolatie

Dubbel glas

Verwarming

Cv ketel, vloerverwarming gedeeltelijk, gashaard

Warm water

Cv ketel

CV-ketel:

Nefit proline hr