Droomhuis alert! Instapklare gezinswoning met uitbouw, gloednieuwe keuken en zonnige tuin!
Welkom bij deze fantastische woning aan de Spanjestraat 7 in IJsselstein! Hier hoef je écht niets meer aan te doen: de huidige eigenaren hebben het huis in 2023 gekocht en met veel liefde en oog voor detail omgetoverd tot een sfeervol, modern en energiezuinig thuis. Wat denk je van de splinternieuwe luxe keuken, zonnepanelen, warmtepompboiler en airconditioning op meerdere verdiepingen! Daarnaast is alles in de woning tot in de puntjes verzorgd. Dit huis is echt een buitenkans!
Locatie
Deze woning heeft het allemaal! Gelegen op korte afstand van het gezellige centrum van IJsselstein, met winkels, ho
...
Droomhuis alert! Instapklare gezinswoning met uitbouw, gloednieuwe keuken en zonnige tuin!
Welkom bij deze fantastische woning aan de Spanjestraat 7 in IJsselstein! Hier hoef je écht niets meer aan te doen: de huidige eigenaren hebben het huis in 2023 gekocht en met veel liefde en oog voor detail omgetoverd tot een sfeervol, modern en energiezuinig thuis. Wat denk je van de splinternieuwe luxe keuken, zonnepanelen, warmtepompboiler en airconditioning op meerdere verdiepingen! Daarnaast is alles in de woning tot in de puntjes verzorgd. Dit huis is echt een buitenkans!
Locatie
Deze woning heeft het allemaal! Gelegen op korte afstand van het gezellige centrum van IJsselstein, met winkels, horeca en alle voorzieningen binnen handbereik. Ook scholen, openbaar vervoer (Sneltram en bus) en uitvalswegen A2 en A12 zijn snel bereikbaar. En binnen een half uur sta je in hartje Utrecht!
Indeling
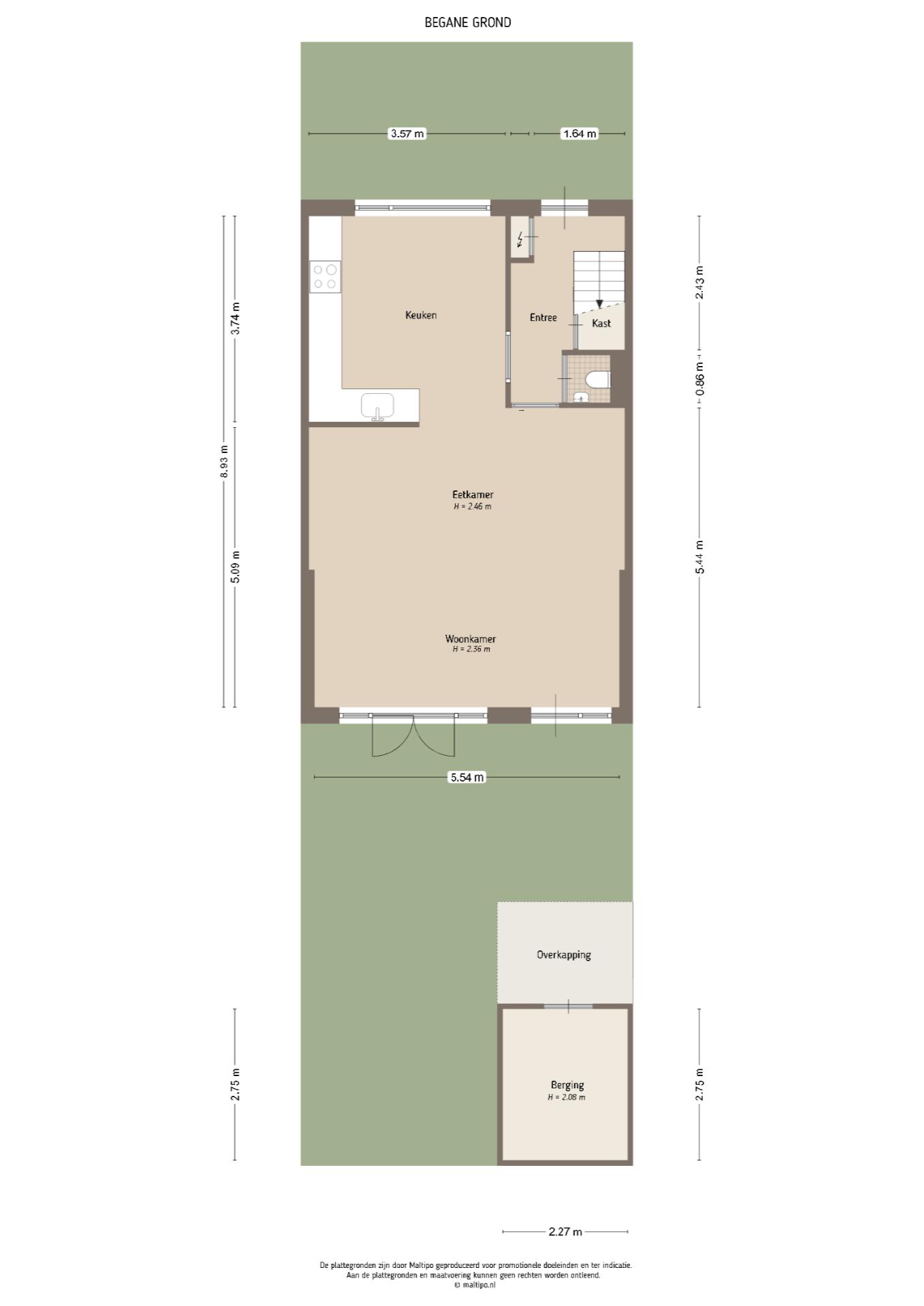
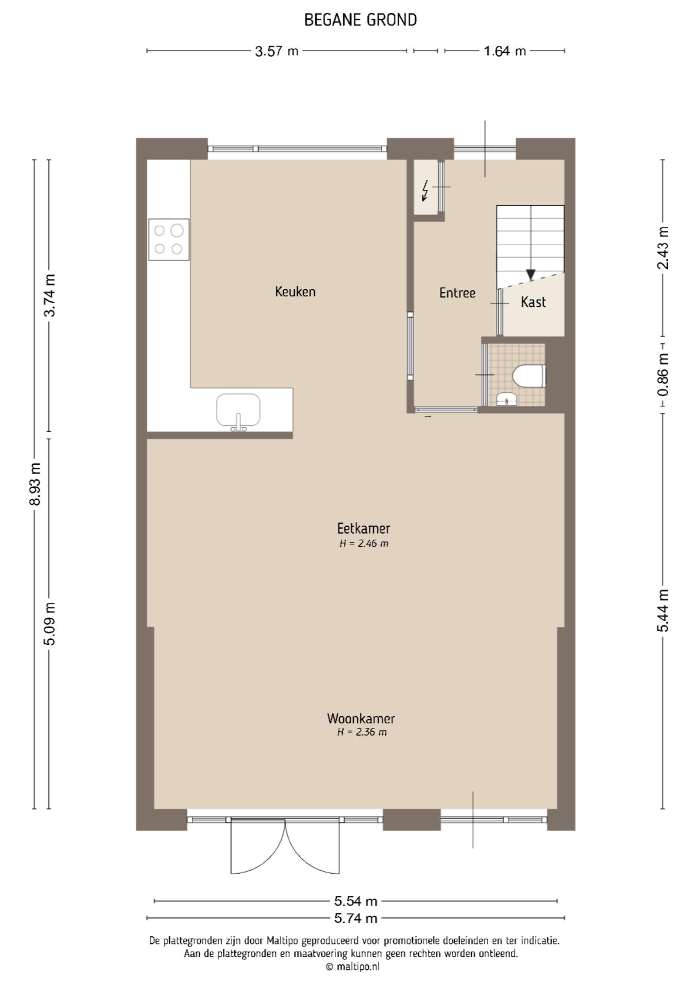
Begane grond:
Entree met meterkast, vernieuwd toilet met fontein, trapopgang met trapkast en toegang tot de woonkamer met half-open keuken. De woonkamer is een heerlijke, lichte ruimte dankzij de grote ramen en de openslaande deuren naar de tuin. Hier geniet je het hele jaar door van comfort, mede dankzij de airconditioning (voor koelen en verwarmen). De strak gestuukte uitbouw met designradiatoren zorgt voor extra leefruimte en een luxe uitstraling. De keuken aan de voorzijde (2023) is een absolute blikvanger! Een moderne hoogglans witte keuken met een stijlvol composiet werkblad, topklasse inbouwapparatuur zoals een koel-vriescombinatie, combimagnetron, heteluchtoven, 4-pits inductiekookplaat met 6 flexzones en een rvs-afzuigkap. En er is hier voldoende ruimte voor een grote eettafel, een heerlijke plek voor vrienden en familie om gezellig te komen eten!
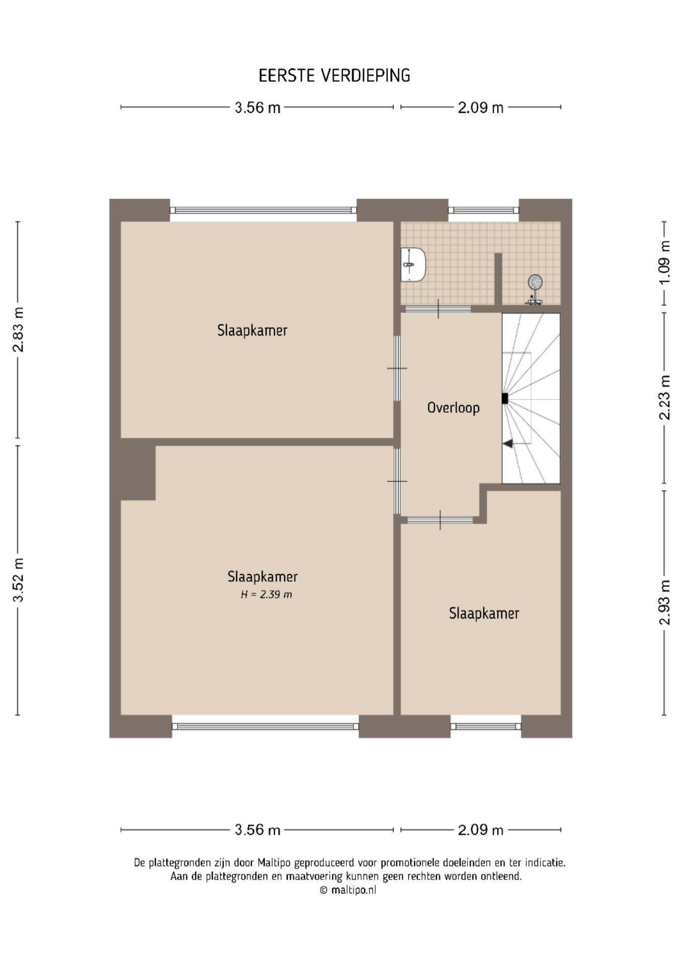
Eerste verdieping:
De hele verdieping is voorzien van een gloednieuwe laminaatvloer in dezelfde warme stijl als beneden. Hier vind je drie fijne slaapkamers: de hoofdslaapkamer (met airconditioning voor zowel verwarmen als koelen), een ruime kastenkamer (met voorbereide afvoer voor een eventueel tweede toilet) en een derde slaapkamer aan de voorzijde. De badkamer is compact maar praktisch en stijlvol: een inloopdouche, een moderne wastafel met meubel, een spiegelkast en een groot draaikiepraam met hor. Extra comfort? Het infrarood paneel aan het plafond zorgt voor heerlijke warmte!
Tweede verdieping:
Op de voorzolder bevindt zich een dakkapel, veel bergruimte en de aansluitingen voor de wasmachine en droger. Hier zijn ook de duurzame installaties te vinden: een nieuwe Intergas HRE CV-ketel (2023), een Nibe warmtepompboiler voor tapwater (2023) en de omvormer voor de 10 zonnepanelen (2023) De vierde slaapkamer van circa 9 m² is een fijne, lichte ruimte met dakkapel.
Buitenruimte
De woning beschikt over een voor- en achtertuin (met achterom).
De achtertuin is gelegen op het (noord)westen, waardoor je overdag én 's avonds heerlijk van de zon kunt genieten. De tuin is voorzien van een handmatig zonnescherm, buitenverlichting, een handige buitenkraan en een stenen schuur met elektra. De overkapping zorgt voor een knusse plek om ook op minder zonnige dagen buiten te zitten.
Bijzonderheden:
Instapklare gezinswoning met een moderne en luxe afwerking;
Uitgebouwde woonkamer met strak stucwerk, airconditioning en designradiatoren;
Stijlvolle, halfopen keuken uit 2023 met hoogwaardige apparatuur;
Vier slaapkamers, waarvan de hoofdslaapkamer met airconditioning;
Geheel vernieuwde meterkast (2023);
Kunststof kozijnen met isolatieglas in de gehele woning;
Duurzame voorzieningen: 10 zonnepanelen, warmtepompboiler en een nieuwe CV-ketel (2023);
Rustige en kindvriendelijke ligging;
Voldoende parkeergelegenheid;
Energielabel A;
Oplevering half juli of in overleg.
Ben jij op zoek naar een instapklare woning waar je niets meer aan hoeft te doen? Dit is je kans! Maak snel een afspraak voor een bezichtiging en laat je verrassen!
De ligging van je tuin is niet gespecificeerd. Echter, ongeacht de ligging, kan elke tuin worden omgetoverd tot een prachtige buitenruimte. Met de juiste planning en design kan je een tuin creëren die bij je levensstijl past en die je kunt genieten in elk seizoen. Of je nu houdt van tuinieren, buiten eten, of gewoon ontspannen in de open lucht, je tuin kan de perfecte plek zijn voor al deze activiteiten en nog veel meer.
Vul onderstaand formulier in om je direct in te schrijven voor de nieuwsbrief. Wij houden je graag op de hoogte van ons uitgelichte aanbod en weetjes over de woningmarkt.