Een warme gezinswoning met zon, ruimte en een heerlijke sfeer
Welkom aan de Stevinstraat 32 – een gezellige en lichte eindwoning waar je je direct thuis voelt. Deze woning heeft nét dat beetje extra: een zonnige tuin op het westen, een sfeervolle woonkamer met open haard en op de verdiepingen vier ruime slaapkamers, een royale badkamer en een zonnig dakterras. De woning is gelegen in een rustige, kindvriendelijke buurt met voldoende parkeergelegenheid, speeltuintjes en scholen op loopafstand.
Indeling
Een fijne start: de begane grond
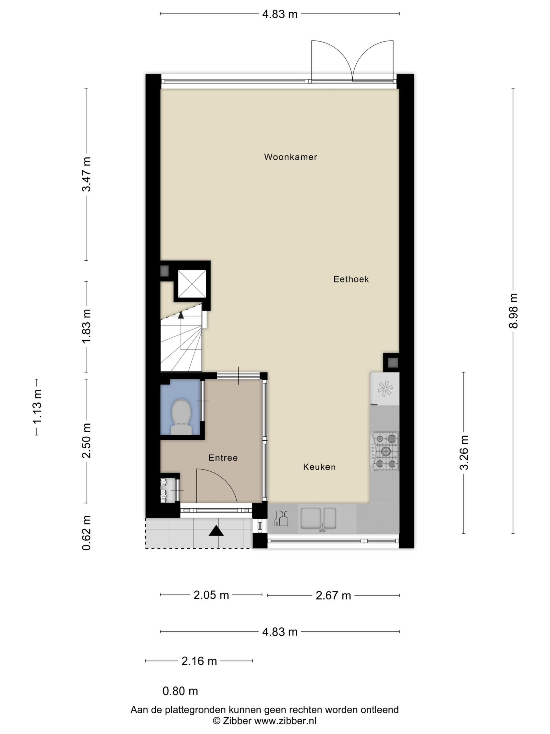
In de entree bevindt zich de garderobe, het toilet en de meterkast. Rechtdoor loop je de woonkamer in – een warme leefruimte met veel lichtinval, een
...
Een warme gezinswoning met zon, ruimte en een heerlijke sfeer
Welkom aan de Stevinstraat 32 – een gezellige en lichte eindwoning waar je je direct thuis voelt. Deze woning heeft nét dat beetje extra: een zonnige tuin op het westen, een sfeervolle woonkamer met open haard en op de verdiepingen vier ruime slaapkamers, een royale badkamer en een zonnig dakterras. De woning is gelegen in een rustige, kindvriendelijke buurt met voldoende parkeergelegenheid, speeltuintjes en scholen op loopafstand.
Indeling
Een fijne start: de begane grond
In de entree bevindt zich de garderobe, het toilet en de meterkast. Rechtdoor loop je de woonkamer in – een warme leefruimte met veel lichtinval, een lichte laminaatvloer en een gezellige open haard als middelpunt. Door de brede raampartij aan de achterzijde en openslaande deuren (2014) heb je een directe verbinding met de tuin en geniet je van het vrije uitzicht naar buiten.
Aan de voorzijde van de woning ligt de (eenvoudige) open keuken. Deze is uitgerust met een 5-pits gasfornuis met heteluchtoven, rvs-afzuigkap en een losse vaatwasser. Door het raam aan de straatzijde kijk je leuk de voortuin en de buurt in – prettig tijdens het koken, terwijl de kinderen buiten spelen.
Eerste verdieping – ruimte voor het hele gezin
Op de eerste verdieping bevinden zich drie slaapkamers (resp. 13,2 m², 9,8 m² en 7 m²), elk met een prettige lichtinval en voldoende ruimte voor kasten of een bureau. De uitgebouwde badkamer is praktisch ingedeeld, met twee wastafels, een inloopdouche met regendouche, een tweede toilet en aansluitingen voor wasmachine en droger.
Tweede verdieping – een fijne extra ruimte
De tweede verdieping biedt verrassend veel mogelijkheden. De slaapkamer (ca. 7,6 m²) met kunststof kozijnen is ideaal als tienerkamer, werkkamer of logeerruimte. Er is volop bergruimte onder de schuine kap (hier bevindt zich ook de cv-installatie (Intergas HRE HR, 2023) Vanaf de overloop heb je toegang tot het zonnige dakterras.
Dit dakterras (ruim 16 m²) is een heerlijke plek voor extra buitenruimte, maar kan – net als bij andere woningen in de straat – ook worden uitgebouwd voor extra woonoppervlak.
De zonnige tuin – jouw plek om tot rust te komen
De woning beschikt over een ruime voor- én achtertuin. Door de westelijke ligging van de achtertuin geniet je hier van de middag- en avondzon – perfect voor lange zomerdagen en gezellige barbecues. De tuin is verzorgd aangelegd en voorzien van een elektrisch zonnescherm (2014), een stenen berging met elektra en een achterom.
Op de tweede verdieping ligt (eveneens op het westen) het ruime dakterras. Vooral ’s avonds, wanneer de zon ondergaat, is dit een bijzonder fijne plek om de dag af te sluiten.
De locatie – gezellig, groen en kindvriendelijk
De Stevinstraat is een rustige straat met brede stoepen, veel groen en vriendelijke buren. Aan beide kanten van de straat kun je parkeren, en er wonen zowel jonge gezinnen als oudere stellen – een leuke mix van generaties en gezelligheid.
Speeltuintjes, basisscholen en middelbare scholen liggen op loopafstand. Ook het winkelcentrum Albert Plesmanplein en haltes voor het openbaar vervoer zijn dichtbij.
Op slechts enkele minuten fietsen ligt het historische centrum van Schoonhoven, met levendige terrassen, restaurants en een gevarieerd winkelaanbod.
De landelijke omgeving in het Groene Hart ligt letterlijk om de hoek en nodigt uit tot prachtige wandel- en fietstochten. Met het openbaar vervoer (bus) is er een goede verbinding met Gouda, Rotterdam en Utrecht – ook met de auto zijn deze steden vanuit Schoonhoven uitstekend bereikbaar.
Bijzonderheden
Ruime 5-kamer eindwoning, woonoppervlak ca. 99 m², inhoud 351 m³;
Gehele achterpui kunststof, voorzien van HR++-glas (2015);
Voorzien van energielabel E met diverse mogelijkheden tot verbetering;
CV-installatie Intergas HRE HR (2023);
Asbest volledig verwijderd (dakterras/schuur in 2014/2024);
Gehele voorzijde van de woning geschilderd in 2025;
Zonnige tuin op het westen met elektrisch zonnescherm en stenen berging;
Ruim dakterras (westen) met uitbreidingsmogelijkheid;
Kindvriendelijke ligging, scholen, speeltuintjes en winkels op loopafstand;
De ligging van je tuin is niet gespecificeerd. Echter, ongeacht de ligging, kan elke tuin worden omgetoverd tot een prachtige buitenruimte. Met de juiste planning en design kan je een tuin creëren die bij je levensstijl past en die je kunt genieten in elk seizoen. Of je nu houdt van tuinieren, buiten eten, of gewoon ontspannen in de open lucht, je tuin kan de perfecte plek zijn voor al deze activiteiten en nog veel meer.
Vul onderstaand formulier in om je direct in te schrijven voor de nieuwsbrief. Wij houden je graag op de hoogte van ons uitgelichte aanbod en weetjes over de woningmarkt.