Ruim en rustig wonen aan de rand van de geliefde wijk Achterveld
Aan de rustige Talingweide in IJsselstein ligt deze royale geschakelde eengezinswoning met zonnige tuin op het zuiden, vrij uitzicht en parkeergelegenheid op eigen terrein. De woning beschikt over een heerlijk lichte woon/eetkamer met open haard en inpandige keuken, een ruime berging/bijkeuken (voormalige garage), vier (met de mogelijkheid tot vijf) slaapkamers en een ruime badkamer.
Dankzij het royale woonoppervlak van 141 m2, de vrije ligging, de groene omgeving en de eigen parkeerplaatsen is dit een fijn familiehuis en een heerlijke plek om thuis te komen!
Locatie
De Talingweide bevindt zich in een kindvriendelijke woonw
...
Ruim en rustig wonen aan de rand van de geliefde wijk Achterveld
Aan de rustige Talingweide in IJsselstein ligt deze royale geschakelde eengezinswoning met zonnige tuin op het zuiden, vrij uitzicht en parkeergelegenheid op eigen terrein. De woning beschikt over een heerlijk lichte woon/eetkamer met open haard en inpandige keuken, een ruime berging/bijkeuken (voormalige garage), vier (met de mogelijkheid tot vijf) slaapkamers en een ruime badkamer.
Dankzij het royale woonoppervlak van 141 m2, de vrije ligging, de groene omgeving en de eigen parkeerplaatsen is dit een fijn familiehuis en een heerlijke plek om thuis te komen!
Locatie
De Talingweide bevindt zich in een kindvriendelijke woonwijk met veel groen en diverse speelvoorzieningen. Op loopafstand liggen basisscholen, sportvelden, een kinderboerderij en winkelcentrum Achterveld. Het gezellige, historische centrum van IJsselstein is snel per fiets te bereiken en biedt een breed aanbod aan winkels, restaurants en cultuur. Ook de sneltram richting Utrecht en de nabijgelegen uitvalswegen A2 en A12 zorgen voor uitstekende bereikbaarheid.
Indeling
Begane grond
Ruime entree met trapopgang, toilet en toegang tot de voormalige garage, momenteel in gebruik als berging met bijkeuken voorzien van wasmachineaansluiting en garderobe. De lichte woonkamer met eiken vloer, open haard en grote glazen schuifpui biedt een prachtig uitzicht op de tuin en het achtergelegen groen. De open, inpandige keuken is uitgerust met een 6-pits gaskookplaat, combi-oven/magnetron, koelkast, 1,5 spoelbak en RVS-afzuigkap.
Eerste verdieping
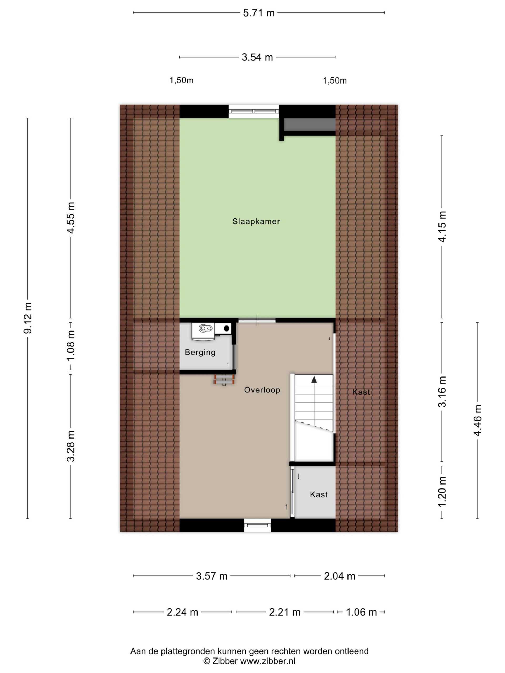
Hier bevinden zich drie ruime slaapkamers (ca 15.5 m2, 12.1 m2 en 9.5 m2), waarvan één met vaste kasten. De badkamer beschikt over een 2-persoonsjacuzzi, tv-aansluiting en een 2-persoons stoomcabine/douche. Verder is er een separaat toilet met fontein en een bergkast op de overloop.
Tweede verdieping
Ruime voorzolder waar eenvoudig een vijfde slaapkamer kan worden gecreëerd. Hier bevindt zich ook de berging/stookruimte (cv-installatie Atag, 2021) en met bergruimte achter de knieschotten. Aangrenzend bevindt zich de vierde slaapkamer (ca. 16 m2) met een fraai uitzicht op de sportvelden. Deze sfeervolle kamer, gelegen onder de schuine kap, is voorzien van airconditioning.
Bergvliering
Vanaf de voorzolder is de ruime bergvliering bereikbaar, ideaal voor alle ski- en kerstspullen.
Buitenruimte
Aan de voorzijde beschikt de woning over een betegelde voortuin met parkeergelegenheid voor twee auto’s. De achtertuin, gelegen op het zonnige zuiden, is onderhoudsvriendelijk ingericht met twee zonneterrassen en diverse borders, waarvan één hardhouten terras gezellig aan de brede sloot ligt. Onder het brede elektrische zonnescherm, met infrarood-heater, is het tot in de late uurtjes heerlijk vertoeven. De gezellige buitenverlichting is vanuit binnen regelbaar.
Bijzonderheden:
Royale geschakelde eengezinswoning (woonoppervlak ca. 141 m²);
Bouwjaar 1987;
Rustig gelegen aan de rand van de geliefde wijk Achterveld;
Vier ruime slaapkamers, mogelijkheid tot vijf;
Zonnige woonkamer met open haard;
Zonnige achtertuin op het zuiden;
Vrij uitzicht op groen en daarachter de sportvelden;
Elektrisch zonnescherm, buitenverlichting en terrasverwarmer aanwezig;
Recent buitenschilderwerk uitgevoerd;
Parkeergelegenheid voor twee auto’s op eigen terrein;
De ligging van je tuin is niet gespecificeerd. Echter, ongeacht de ligging, kan elke tuin worden omgetoverd tot een prachtige buitenruimte. Met de juiste planning en design kan je een tuin creëren die bij je levensstijl past en die je kunt genieten in elk seizoen. Of je nu houdt van tuinieren, buiten eten, of gewoon ontspannen in de open lucht, je tuin kan de perfecte plek zijn voor al deze activiteiten en nog veel meer.
Vul onderstaand formulier in om je direct in te schrijven voor de nieuwsbrief. Wij houden je graag op de hoogte van ons uitgelichte aanbod en weetjes over de woningmarkt.