Ben jij op zoek naar een veelzijdige eengezinswoning? Dan nodigen wij je van harte uit voor een bezichtiging aan de Tuinensingel 27.
Wat maakt dit huis zo bijzonder?
De multi functionele ruimte op de begane grond, een vide en indrukwekkende hoge raampartijen. Deze elementen maken dat de woning een geheel eigen karakter heeft. En met een woonoppervlak van 137 m² en ook nog de mogelijkheid om uit te breiden met een dakopbouw, heb je hier volop ruimte om alle woonwensen waar te maken.
De locatie in de wijk Zenderpark is ook prima: voor de deur ligt een grasveld met bomen en borders – een groene oase en fijne speelplek voor kinderen. Je geniet vanuit de w
...
Wonen met ruimte en identiteit!
Ben jij op zoek naar een veelzijdige eengezinswoning? Dan nodigen wij je van harte uit voor een bezichtiging aan de Tuinensingel 27.
Wat maakt dit huis zo bijzonder?
De multi functionele ruimte op de begane grond, een vide en indrukwekkende hoge raampartijen. Deze elementen maken dat de woning een geheel eigen karakter heeft. En met een woonoppervlak van 137 m² en ook nog de mogelijkheid om uit te breiden met een dakopbouw, heb je hier volop ruimte om alle woonwensen waar te maken.
De locatie in de wijk Zenderpark is ook prima: voor de deur ligt een grasveld met bomen en borders – een groene oase en fijne speelplek voor kinderen. Je geniet vanuit de woonkamer op de eerste verdieping van vrij uitzicht.
Het historische centrum van IJsselstein, winkels, sportclubs en scholen om de hoek. Utrecht Is met het OV (bus en sneltram) en per auto binnen 20 minuten bereikbaar.
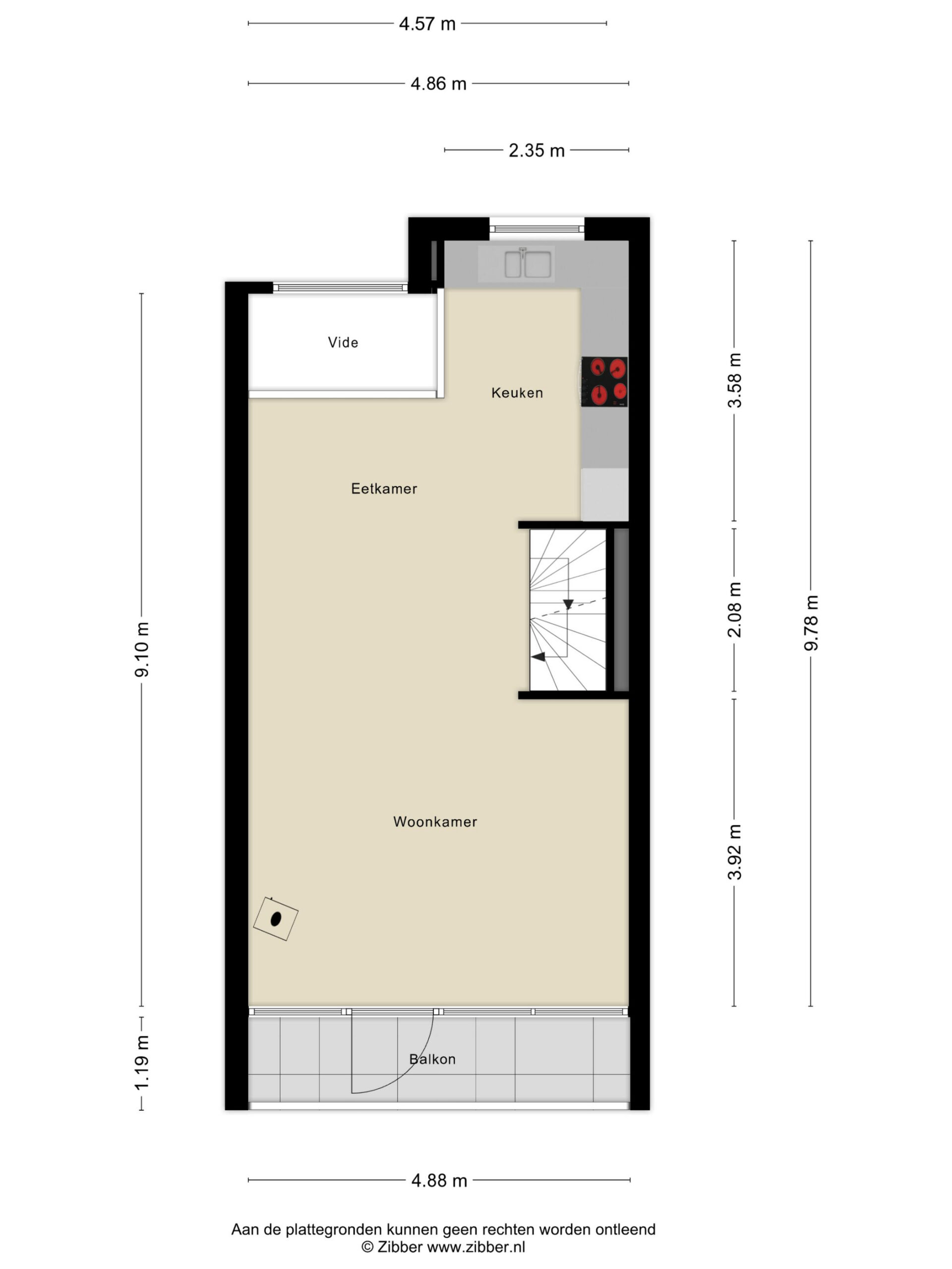
Indeling
Begane grond
Bij binnenkomst kom je in de ruime entree met garderobe, meterkast en toegang tot de inpandige berging. De tussenhal (met trapopgang en toilet) biedt toegang tot de royale tuinkamer. Meteen valt hier je oog op de hoge glazen pui en de vide. Deze lichte ruimte kan je naar wens gebruiken als werkplek, atelier, extra slaapkamer of speelkamer. In de hoek bevindt zich een keukenblok met warm- en koud stromend water.
De schuifpui geeft toegang tot de zonnige achtertuin.
Eerste verdieping
Hier bevindt zich de woon/eetkamer met open keuken.
De woon/eetkamer is heerlijk licht dankzij de grote raampartijen aan voor- en achterzijde. Vanuit de zithoek kom je op het zonnige balkon. In de hoek naast de zithoek zien we een moderne houtkachel.
De open keuken ligt aan de achterzijde van de woning. Deze is uitgevoerd met diverse inbouwapparatuur: een 4-pits keramische kookplaat, rvs-afzuigkap, heteluchtoven, magnetron, vaatwasser en koel-/vriescombinatie.
Ook hier is de vide met glaspui de echte eyecatcher.
De hele verdieping is voorzien van een stenen vloer met vloerverwarming.
Tweede verdieping
Hier bevinden zich twee slaapkamers (18,6 m² en 7,6 m²), waarvan één met vaste schuifdeurkast. De grote slaapkamer biedt bovendien de mogelijkheid om een derde slaapkamer te realiseren. Verder vind je hier een ruime badkamer met ligbad, douche, wastafel en tweede toilet, én een praktische berging met aansluiting voor wasmachine en droger, de mechanische ventilatie-unit en de CV-installatie (Remeha Calenta, 2010).
Buitenruimte
De tuin is gelegen op het oosten. Dit is een heerlijke plek: aangelegd met een vijver, beplanting en zonneterrassen. Daarnaast is er een balkon aan de voorzijde, gelegen op het zonnige westen. Een elektrisch zonnescherm en elektrische screens rondom houden de woning heerlijk koel.
Bijzonderheden
Royale tussenwoning van 137 m² woonoppervlak;
Goed geisoleerd, voorzien van energielabel A;
Tuinkamer met hoge glazen pui en vide: ideaal als atelier, werk- of slaapkamer;
Zonnige achtertuin op het oosten en breed balkon op het westen;
Elektrische screens aan de voor- en achterzijde en elektrisch zonnescherm op het balkon;
Dakopbouw mogelijk;
Kindvriendelijke ligging met speelveld voor de deur;
De ligging van je tuin is niet gespecificeerd. Echter, ongeacht de ligging, kan elke tuin worden omgetoverd tot een prachtige buitenruimte. Met de juiste planning en design kan je een tuin creëren die bij je levensstijl past en die je kunt genieten in elk seizoen. Of je nu houdt van tuinieren, buiten eten, of gewoon ontspannen in de open lucht, je tuin kan de perfecte plek zijn voor al deze activiteiten en nog veel meer.
Vul onderstaand formulier in om je direct in te schrijven voor de nieuwsbrief. Wij houden je graag op de hoogte van ons uitgelichte aanbod en weetjes over de woningmarkt.