Comfortabel, modern en ruim appartement met zonnig balkon en privéparkeerplaats
Bent u op zoek naar een comfortabel, licht en goed toegankelijk appartement? Dan is dit ruime 3-kamerappartement met een woonoppervlak van ca. 93 m² op de begane grond van het nette appartementencomplex Veluwemeer West wellicht iets voor u. Het appartement beschikt over een royaal overdekt balkon op het zuidoosten, een eigen berging én een brede privéparkeerplaats in de overdekte garage.
Dankzij de grote ramen en lichte afwerking is de woning heerlijk licht en voelt het prettig aan. Het gebouw telt in totaal 23 appartementen en is gelegen op korte loopafstand van recreatieplas Cattenbroek. Voor uw dagelijks
...
Comfortabel, modern en ruim appartement met zonnig balkon en privéparkeerplaats
Bent u op zoek naar een comfortabel, licht en goed toegankelijk appartement? Dan is dit ruime 3-kamerappartement met een woonoppervlak van ca. 93 m² op de begane grond van het nette appartementencomplex Veluwemeer West wellicht iets voor u. Het appartement beschikt over een royaal overdekt balkon op het zuidoosten, een eigen berging én een brede privéparkeerplaats in de overdekte garage.
Dankzij de grote ramen en lichte afwerking is de woning heerlijk licht en voelt het prettig aan. Het gebouw telt in totaal 23 appartementen en is gelegen op korte loopafstand van recreatieplas Cattenbroek. Voor uw dagelijkse boodschappen kunt u terecht bij winkelcentrum Snel & Polanen. Ook het openbaar vervoer (bus en trein) is goed bereikbaar via station Woerden. Gaat u liever met de fiets? Dan bent u zo in het gezellige centrum van Woerden, waar u kunt winkelen of genieten van een etentje.
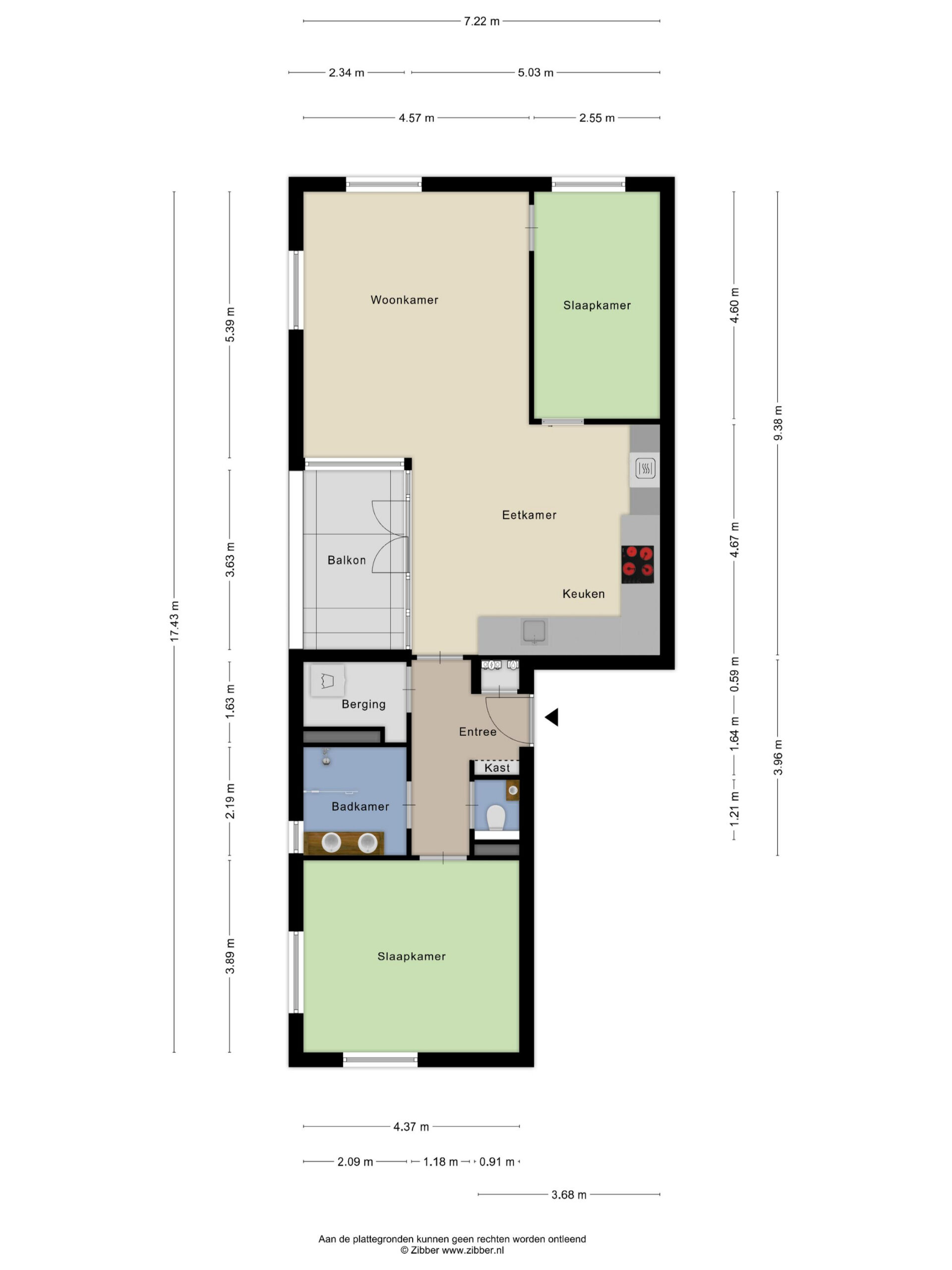
Indeling van het appartement
Via de centrale entree aan het Veluwemeer komt u in de gezamenlijke hal met een lift en trappenhuis. Vanuit hier zijn zowel het appartement als de berging en de parkeergarage bereikbaar. Het appartement ligt op een split-level van de entree.
Binnenkomst en leefruimte
U komt binnen in een brede hal met garderoberuimte en meterkast. Vanuit de hal bereikt u alle vertrekken. De woonkamer en open woonkeuken zijn samen ca. 36 m² groot. Dankzij de grote ramen is het er heerlijk licht.
De keuken is ruim en voorzien van veel opbergruimte. De volgende inbouwapparatuur is aanwezig en grotendeels vernieuwd in 2023: Inductiekookplaat (4 zones), afzuigkap (vlakscherm), vaatwasser, koel-vriescombinatie, hetelucht-oven met warmhoudlade en magnetron.
Balkon
Via openslaande deuren in de eetkamer bereikt u het overdekte balkon (ca. 8 m²), met houten vlonders en een balustrade. Hier kunt u al vroeg in het voorjaar van de zon genieten.
Slaapkamers en sanitair
Naast de woonkamer ligt een tweede slaapkamer, momenteel in gebruik als logeerkamer en werkkamer. De ruime hoofdslaapkamer beschikt over een elektrische buitenzonwering (rolluik) en een grote linnenkast met schuifdeuren.
De badkamer, geheel vernieuwd in 2023, is praktisch ingericht met een inloopdouche, wastafelmeubel, handdoekradiator en een raam voor frisse lucht. Het toilet bevindt zich apart in de hal en is voorzien van een wandcloset en fonteintje.
Wasruimte
De aparte wasruimte biedt plaats aan de wasmachine en droger, en bevat de warmtewisselaar en de ventilatie-unit. Ook is hier extra bergruimte aanwezig.
Parkeren en berging
In de ondergelegen parkeergarage beschikt u over een extra brede privéparkeerplaats (ca. 26 m²) – ideaal als u ruim wilt parkeren of hulpmiddelen meeneemt. Uw eigen berging met elektra is handig voor het stallen van fietsen of het opbergen van spullen.
Belangrijke kenmerken op een rij:
• Bouwjaar: 2008, Woonoppervlakte: ca. 93 m²;
• Balkon: ca. 8 m², overdekt en op het zuidoosten;
• Eigen berging (ca. 4 m²) met elektra;
• Extra brede parkeerplaats in de garage (ca. 26 m²);
• Volledig voorzien van vloerverwarming én vloerkoeling;
• 5 eigen zonnepanelen uit 2023;
• Geheel gasloos en goed geïsoleerd (Energielabel A);
• Actieve VvE, servicekosten ca. € 171 per maand;
• Alle buitenkozijnen, balkondeuren en ramen in 2024 geschilderd;
• Badkamer geheel vernieuwd in 2023
• Apparatuur van keuken is grotendeels vervangen in 2023 (behalve inductie-kookplaat);
De ligging van je tuin is niet gespecificeerd. Echter, ongeacht de ligging, kan elke tuin worden omgetoverd tot een prachtige buitenruimte. Met de juiste planning en design kan je een tuin creëren die bij je levensstijl past en die je kunt genieten in elk seizoen. Of je nu houdt van tuinieren, buiten eten, of gewoon ontspannen in de open lucht, je tuin kan de perfecte plek zijn voor al deze activiteiten en nog veel meer.
Vul onderstaand formulier in om je direct in te schrijven voor de nieuwsbrief. Wij houden je graag op de hoogte van ons uitgelichte aanbod en weetjes over de woningmarkt.